Das MFH La Vetta bricht mit der Verspieltheit der es umgebenden Gebäude und lehnt sich an einer reduzierten, modernistischen Architektur im alpinen Raum an.
Dafür gibt es zahlreiche Vorbilder in verschiedenen Massstäben. Frühe Beispiele wären die Bauten von Clemens Holzmeister aber auch grossmassstäbliche Strukturen z.B. von Charlotte Perriand. Soe zeigen auf, wie abstrakte formen und von der Natur geformte Felslandschaften zusammenspielen können.
Die Fassade mit ihrer Holzoberfläche weisst darauf hin, dass das gesamte Gebäude oberhalb des steinernen Sockels eine Holzkonstruktion ist. Die zurückhaltend eingesetzten, naturbelassenen Materialien betonen das Volumen, welches von diverse Einschnitten für Fenster und Loggien klar gegliedert wird.
Auch im Inneren setzt sich die äussere Erscheinung fort. Natürliche und edle Materialien, weiche Texturen und handgefertigte Möbel schaffen eine originelle und elegante Umgebung. Der Charakter des traditionellen alpinen Stils wird mit einem subtilen hauch von Eleganz bereichert, der eine anspruchsvolle und raffinierte Atmosphäre schafft.
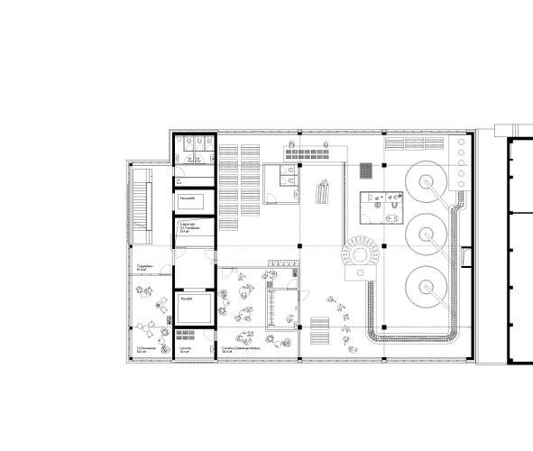
Das MFH La Vetta in Andermatt Reuss beherbergt insgesamt 18 Wohnungen mit 3.5, 4.5 und 5.5 Zimmern. Im Erdgeschoss gibt es eine Retail-Fläche und einen Spa/Fitness-Bereich für die Bewohner.
Das Mehrfamilienhaus an der General-Wille-Strasse in Feldmeilen profitiert von seiner verkehrsgünstigen Lage in unmittelbarer Nähe zum Bahnhof Herrliberg-Feldmeilen. Die Überbauung gliedert sich in zwei charakteristische Gebäudeteile: einen flachen und einen stehenden Baukörper, die zusammen ein Ensemble bilden.
Der Hauptzugang zu den Wohnungen erfolgt von der Nordseite über das Haldengässli, von wo aus das hohe Gebäude als Zweispänner organisiert ist und zehn Wohnungen erschliesst. Drei weitere Wohnungen über der zur General-Wille-Strasse ausgerichteten Gewerbefläche erhalten jeweils einen direkten, eigenständigen Zugang.
Konstruktiv wurden Untergeschoss und Erdgeschoss in Massivbauweise erstellt, während die darüberliegenden Geschosse in Holzelementbauweise realisiert wurden. Den Wetterschutz übernimmt eine Fassadenhaut aus Aluminium.
Auf dem Albis-Areal in Zürich-Albirieden wurde 2018-2021 das Gewerbe- und Dienstleistungsgebäude YOND.01 realisiert. Ein Gebäude, welches sich durch eine hohe Nutzungs- und Raumflexibilität auszeichnet und damit sowohl die Bedürfnisse und Anforderungen klassischer Dienstleistungsfirmen als auch produzierender Gewerbebetriebe erfüllen kann. Die zweite Ausbauetappe sieht vor, das Erfolgsmodell YOND.01 weiterzuentwickeln, zusätzlichen flexiblen und modularen Gewerbe- und Produktionsraum an zentraler Lage zu aktivieren und das Areal als YOND Campus für Kooperation und Produktion weiter zu etablieren.
Das Konzept für die beiden Neubauten YOND.02/03 mit insgesamt rund 31'000 m2 Nutzfläche basiert auf dem Prinzip YOND.01, wird aber noch stärker auf die Bedürfnisse produzierender Betriebe ausgerichtet: eine robuste und leistungsfähige Trag- und Raumstruktur, grosse zusammenhängende Flächen mit flexibler Unterteilbarkeit, das bewährte Zwischengeschossprinzip und eine optimierte Logistik mit Anlieferung, Laderampe, logistiktauglichem Untergeschoss und leistungsfähiger Vertikalerschliessung. Das Flächenangebot reicht von rund 150 bis 2800 m2 zusammenhängender Grundfläche, welche jeweils durch den Einbau von Zwischengeschossen in Holzbauweise den Bedürfnissen der Nutzer entsprechend erweitert und individuell konfiguriert werden können.
Das ehemalige Labor- und Werkstattgebäude an der Albisriederstrasse 203 ist bereits heute durchmischt genutzt und soll als baulicher Zeitzeuge erhalten und zu einem Hub für das Klein- und Kreativgewerbe mit rund 3’400 m2 Nutzfläche erweitert werden. Hierfür wird es mit geringer Eingriffstiefe saniert und um ein zusätzliches Geschoss aufgestockt. Das heutige Kesselhaus mit der Heizzentrale wird bis auf die Struktur zurückgebaut und in einen vertikalen Garten in der Mitte des Areals transformiert. Im angrenzenden Erdgeschoss ist ein Bistro als Treffpunkt vorgesehen. Eine allen Mietern des Gebäudes offenstehende Dachterrasse soll das Gebäude als Plattform für die Kreativwirtschaft zusätzlich stärken.
Entlang der Albisriederstrasse und beim Park an der Kreuzung sind publikumsorientierte und gastronomische Nutzungen vorgesehen, welche einen Beitrag zur Belebung und Aktivierung der angrenzenden Strassen und Quartiere leisten sollen. Das Erdgeschoss spielt für den YOND Campus eine wichtige Rolle. Hier sollen die Nutzungen möglichst klar zum Ausdruck bringen, wofür das Areal steht: ein kreatives und durchmischtes Nebeneinander unterschiedlicher gewerblicher oder handwerksaffiner Nutzungen, ergänzt durch kommerzielle und gastronomische Angebote. Insgesamt soll das Albis-Areal durch die nächste Ausbauetappe zu einem Campus mit hoher Aufenthaltsqualität komplettiert werden, auf welchem beruhigte Bereiche mit attraktiven Frei- und Platzräumen im Zusammenspiel mit den betrieblichen Aspekten eines gewerblichen Areals eine spezifische Atmosphäre kreieren.
Inspiriert von historischen Schweizer Bergpalazzi wurde Pazola edel und gleichzeitig lokal verankert gestaltet. Die Fassade des Gebäudes zitiert diese über eine reduzierte Ornamentik, während größere Fenster und höhere Decken eine zeitgemäße Optik und ein luftiges Gefühl schaffen. Typische alpine Baumaterialien wie Stein und Holz spiegeln die Berge und Fichtenwälder der Umgebung wider. Obwohl die Steinfassade den Holzbau verbirgt, werden die Holzdecken in den Innenräumen sichtbar, besonders in den Penthouses mit ihren hohen Holzbalken.
Die gesamte Konstruktion über dem Erdgeschoss, einschließlich des Daches, besteht aus Holzelementen. Auch die Fassade wurde konstruktiv aus Holzelementen erstellt und ist mit einem hochwertigen mineralischen Putz auf hinterlüfteten Putzträgerplatten verkleidet. Die Bauweise in Holz bot zahlreiche Vorteile. In Andermatt ermöglicht es die kurze Bausaison optimal zu nutzen, da vorfabrizierte Elemente den Rohbau in einer Saison abschliessen lassen. Zudem minimiert Holz als nachhaltiges Material die Umweltbelastung durch seine guten Dämmwerte, CO2-Negativität und die Möglichkeit zur zerstörungsfreien Demontage und Wiederverwendung.
Das MFH Pazola in Andermatt Reuss beherbergt insgesamt 19 Wohnungen mit 3.5 und 4.5 Zimmern. Im Erdgeschoss gibt es zusätzlich einen Retail-Bereich und ein Spa für die Bewohner.
Baufeld B - Gewerbe- und Dienstleistungshaus
Für den Gewerbe-/Bürobau auf Baufeld 3 schlagen wir ein authentisches und wandelbares Gebäude vor, das eine hohe Adaptierbarkeit in Bezug auf Flächengrössen, Nutzungsformen und räumlicher Ausgestaltung bietet und dabei einen starken räumlichen und funktionalen Bezug zu seiner Umgebung sucht. Dafür sollte ein möglichst breites Spektrum zeitgemässen Arbeitens von klassischer Dienstleistung bis zum produzierenden Gewerbe abgedeckt und eine hohe Flexibilität für verschiedene Mieteransprüche von einfach bis gehoben angeboten werden. Mit Blick auf die angestrebte Diversität galt uns als übergeordnetes Leitmotiv, dass dieses Gebäude auf der Grundlage evolutiver Ausbaukonzepte mit konsequenter Systemtrennung auch attraktive Angebote für kleinere und weniger zahlungskräftige Mietersegmente bereitstellen kann.
Die Mietflächen auf den Regelgeschossen sind flexibel unterteilbar und aus den Ankunftsbereichen direkt von zwei Seiten erschlossen. Durch die zugrundeliegende Riegeltypologie sind Korridore von Kern zu Kern möglich und die Geschosse können flexibel und effizient in kleinere Einheiten unterteilt werden. Somit bietet das Gebäude eine sehr hohe Flexibilität für Multi- und Single-Tenant-Szenarien in unterschiedlichen Kombinationen – sowohl geschossweise als auch durchmischt.
Mit dem Ziel eine spezielle Workplace-Experience zu schaffen und den Austausch zwischen den Mietern zu stimulieren, bietet das Gebäude verschiedene Begegnungszonen und geteilte Einrichtungen in Form des zentralen Atriums, der Dachgärten und der Balkone an den Längsseiten sowie in den Gebäudeeinschnitten. Das Atrium wird nebst seiner Funktion zur Belichtung als Aufenthalts- und Begegnungsraum mit Sichtverbindungen in alle Richtungen aktiviert. Eingespannte Plattformen bilden Orte mit unterschiedlicher Ausgestaltung für kollektive Nutzungen, in den Raum gespannte Treppen bilden informelle Wege zwischen den Geschossen und Gebäudeseiten.
Baufed 4 - Wohnhochhaus
Für das Wohnhochhaus auf Baufeld 4 stellen wir ein Gebäude zur Disposition, welches Wohnangebote für unterschiedliche Milieus, Haushaltsgrössen und Altersgruppen bereitstellt und somit einen Beitrag leistet zur sozialen Durchmischung im neuen Quartier. Eine Kombination aus konventionellen und neueren Wohnformen fördert die städtische Durchmischung. Für die vorgesehene Sockelnutzung können nebst den geforderten Arbeitsflächen auch Angebote für die Bewohner des Gebäudes (Kinderbetreuung, Co-Working-Flächen) sowie im Erdgeschoss öffentliche oder halböffentliche Nutzungen (Gastronomie, Quartierladen) angeboten werden. Der für Hochhäuser typische Mehrspänner ist mit einem funktional kompakten Erschliessungskern für 4 bis 6 Wohnungseinheiten je Geschoss konzipiert.
Eine besondere Aufmerksamkeit gilt im Wohnhochhausbau den strukturellen Abhängigkeiten über sämtliche Geschosse. Die im Projekt vorgestellte Strategie der Wohnungsorganisation innerhalb des engen vorgegebenen Rahmens und des angestrebten Nutzflächenzielwerts basiert auf dem Prinzip „Regel und Ausnahme“, wobei die Regel die Verwandtschaft, die gemeinsame DNA der Wohnungen manifestiert und die Ausnahme das Spezifische erwähnt. Die Absicht der „Regel“ ist die Sicherung von Qualitäten der unterschiedlichen Bereiche des Wohnens und die Definition wiederkehrender Standards und Elemente zur Erhöhung der Effizienz des gesamten Planungs- und Realisierungsprozesses. Die Ausnahme hingegen kommt dann zur Anwendung, wenn die Regel nicht tangiert wird, mit dem Ziel, aufgrund der hohen Anzahl an Repetition eine grosse Vielfalt von Wohnungen unterschiedlichen Typus sowie dessen Gesamtausdruck als „Wohnhochhaus“ zu etablieren.
Städtebau
Die Zeile mit den vier Gewerbehäusern an der Flüelastrasse gehört zu den einprägsamsten Ensembles ihrer Art im Letzi-Quartier. Der Ausdruck dieser Bauten ist geprägt durch die pragmatische Einfachheit schlichter Band- und Lochfassaden und das für den charakteristischen Blauton der Fenster und Fassadenteile. Ihre strukturelle Flexibilität bietet Raum für Gewerbe- und Dienstleistungsnutzungen unterschiedlichster Art.
Durch den Ersatzneubau am südwestlichen Ende soll diese Zeile durch ein Gebäude ergänzt werden. Das Projekt Anemona sucht die Eingliederung in die bestehende Zeile und stärkt diese gleichzeitig durch einen neuen Auftakt an ihrem südwestlichen Ende. Die Schmalseite des Neubaus bildet mit einer stirnseitig vorgelagerten Erschliessungszone eine attraktive und belebte Front aus und aktiviert den Vorraum zwischen Gewerbezeile und Rechenzentrum.
Das einfache und funktionale Volumen besetzt in den ersten drei gewerblich orientierten Geschossen annähernd den gesamten Baubereich und wird ab dem 3. Obergeschoss im Bereich der Dienstleistungsflächen in der Tiefe reduziert. Diese Verjüngung der Kubatur verleiht dem Gebäude stirnseitig eine stehende und elegant wirkende Proportion und passt das Volumen auf selbstverständliche Weise in das baurechtliche Mantelvolumen ein. Durch das zweiseitige Zurückstufen entstehen auf beiden Längsseiten attraktive Dachterrassen.
Das Konzept basiert deshalb auf einen Grundrisstyp mit peripherer Erschliessungsanordnung vor wobei die Erschliessung und die Nebenräume an der Südwestfassade positioniert werden. Diese bilden eine unbeheizte Schicht mit dienenden Räumen aus, welche neben der vertikalen Erschliessung auch alle Nasszellen und Nebenräume sowie eine grosse und flexible Steigzone für die Gebäudetechnik beinhaltet. Das grosszügige Treppenhaus wird als eigentliche Begegnungszone mit kollektiven Pausen- resp. Aufenthaltsräumen auf allen Geschossen.
Die Erdgeschossfläche kann als zusammenhängende Fläche genutzt oder in kleinere Flächen unterteilt werden. Sie ist mit Falt- oder Rolltoren raumhoch öffenbar und kann somit direkt ab der Strasse erschlossen oder bei Bedarf auch befahren werden. Das Erdgeschoss eignet sich somit insbesondere für bodennahes Gewerbe wie Werkstätten, Fertigungs- oder Logistikbetriebe, die auf häufige und direkte Anlieferungsbewegungen angewiesen sind, aber auch für Showrooms, Ladenlokale oder unterschiedliche Kombinationen dieser Nutzungen.
Die Obergeschosse bieten im Grundsatz die gleiche Flexibilität wie das Erdgeschoss mit Mietflächen von etwas über 500m2 im 2. Und 3. und rund 400m2 vom 3. bis zum 5. Obergeschoss. Eine Unterteilung in kleinere Flächen von bis zu 60m2 ist jederzeit und flexibel über eine Erweiterung der Erschliessung über einen Mittelkorridor möglich.
Die Wohnüberbauung auf dem Ifang-Areal in Schwerzenbach liegt zwischen Bahnhof-, Industrie- und Ifangstrasse an einer ortsbaulich zentralen und gut erschlossenen Stelle.
Die Überbauung besteht aus einem Baukörper, der als einseitig offener Hoftyp mit einem Erd- und vier Obergeschossen ausgelegt ist. Sie umfasst 128 Wohneinheiten sowie 4 Atelierräume und 3 gewerbliche Einheiten im Erdgeschoss des westlichen und des nördlichen Gebäudeflügels. Ein vollflächiges Untergeschoss beinhaltet eine Tiefgarage mit 130 Parkplätzen, Technikflächen, Mieterkeller und Lagerräume. Alle Wohnungen werden über insgesamt 13 Treppenhäuser aus dem Innenhof erschlossen, erstrecken sich über zwei Fassaden und verfügen über mindestens einen grossen Balkon resp. Gartensitzplatz.
Die Umgebungsgestaltung reagiert differenziert auf das heterogene Umfeld. Der Innenhof ist als ruhiger Wohnhof ausgelegt, entlang der ruhigen Ifangstrasse finden sich südorientierte Gartenwohnungen mit privaten Aussenbereichen. Entlang der Bahnhofstrasse entsteht entlang der Ateliers im Erdgeschoss eine städtische Promenade resp. Vorzone mit einer Baumreihe, welche im Norden am Chimlibach in einen kleinen asphaltierten Platz mündet, welcher auch Aussenfläche für öffentliche oder halb-öffentliche Nutzungen im Erdgeschoss bietet.
Das Gebäude kann flach fundiert und als Massivbau realisiert werden. Die Aussenwände sind in Beton resp. Backstein vorgesehen und werden grösstenteils aussen isoliert und verputzt. Stellenweise werden die Fenster durch blechverkleidete hinterlüftete Fassadenteile zu Bändern zusammengefasst, was dem Gebäude allseits eine grosszügige und offene Wirkung verleiht. Die Fenster sind als Kunststoff-Metall-Fenster vorgesehen, das Flachdach wird mit Ausnahme der durch gebäudetechnische Anlagen besetzten Stellen extensiv begrünt.
YOND kombiniert einen attraktiven städtischen Standort mit einem neuartigen Raumangebot, das sich insbesondere an das “urbane Gewerbe” richtet. Eine robuste Struktur mit hohen Nutzlasten und 5 ½ Meter hohen Räumen erlaubt eine annähernd uneingeschränkte Flexibilität für Nutzungen aller Art. Vom klassischen Dienstleister über das städtische Kreativgewerbe bis zur industriellen Produktion kann dieses Gebäude auf die unterschiedlichsten Nutzungsanforderungen reagieren.
Nebst der nutzungsbezogenen Offenheit bietet YOND auch eine sehr hohe räumliche Flexibilität. Die Mietflächen können sowohl in grösse als auch ihrer räumlichen Ausgestaltung laufend an die Bedürfnisse und Wünsche der Mieter angepasst werden. Ein System aus Zwischenböden erlaubt die individuelle Ausgestaltung sowie eine einfache Anpassbarkeit der Mietflächen. In Kombination mit der fast raumhohen Verglasung entsteht so eine Atmosphäre, die an klassische Industriebauten erinnert und diese mit einem zeitgemässen Infrastruktur- und Serviceangebot verknüpft.
Vom Grundriss bis zur Erscheinung folgt die Architektur dem Gebot der Einfachheit. Aussen schlicht und kraftvoll, innen funktional und authentisch. Offenheit, Klarheit und Reduktion schaffen ein Raumklima, das Konzentration und Austausch fördert. Das Erdgeschoss bietet Raum für publikumsorientierte öffentliche Nutzungen und wird in Zukuft als Treffpunkt der YOND-Community auch das Quartier und das weitere Umfeld beleben.
Der Begriff AIRPORT CITY steht für den zusammenhängenden, über die Gemeindegrenzen von Opfikon, Kloten und Rümlang hinausgehenden Raum zwischen der Autobahn A1 und dem Balsberg sowie der Birchstrasse und Schaffhauserstrasse. Das heterogene Siedlungsband profitiert von einer hervorragenden Verkehrserschliessung sowohl mit dem motorisierten wie auch mit dem öffentlichen Verkehr. Die AIRPORT CITY ist mit drei S-Bahnhöfen, drei Glattalbahn-Haltestellen sowie neun Bushaltestellen eines der mit dem öffentlichen Verkehr sehr gut erschlossenen Gebiete des Kantons.
Die Spielräume für die weitere bauliche Gebietsentwicklung, die gemäss den gültigen Bau- und Zonenordnungen nahezu eine Verdoppelung der Geschossflächen zulassen, sind bei unverändertem Mobilitätsverhalten aufgrund der ausgeschöpften Kapazitäten im motorisierten Verkehr jedoch eingeschränkt. Eine weitere Entwicklung ist nur möglich, wenn der dadurch entstehende Mehrverkehr auf den öffentlichen oder den nicht motorisierten Verkehr verlagert werden kann. Dem Fuss- und insbesondere dem Veloverkehr kommt in diesem Zusammenhang eine entscheidende Bedeutung zu.
Das Ziel einer möglichst guten Erschliessung, wie die Anbindung der S-Bahnhöfe, der Arbeitsplatz- und Mischgebiete sowie der grösseren Entwicklungsprojekte führten zur Festlegung der BIKE LINE mit Konzentration auf den Abschnitt Lindbergh-Platz - Giebeleichstrasse/Bahnhof Opfikon - Bahnhof Glattbrugg - Europastrasse - Flughofstrasse - Bahnhof Balsberg - Balz-Zimmermann-Strasse. Aus betrieblicher Sicht sind Direktheit, eine klare Führung und Orientierung sowie wenige Wechsel beim Regime und aus Gründen der Sicherheit eine klare Trennung von Fuss- und Veloverkehr vorgesehen.
Für die Giebeleich-, Europa- und Flughofstrasse stehen sogenannte Velostrassen mit Trottoir im Vordergrund, auf denen wie bis anhin Mischverkehr von motorisierten Fahrzeugen und Velos möglich ist, jedoch mit genereller Vorfahrt für den Veloverkehr. Dazu kommen zwei Brückenbauwerke ausschliesslich für den Fuss- und Veloverkehr zur Querung der Glatt sowie der Autobahn am Bahnhof Balsberg.
Die Trennung von Fahrbahn und Fussweg erfolgt grundsätzlich durch Baumreihen und Grünstreifen, wodurch sie wiedererkennbar sowie identitätsprägend für die Airport City ist und auch aus der Ferne wirkt. Die grüne Infrastruktur der BIKE LINE ist jedoch nicht nur ein optisches Element, sondern stadtökologisch von grosser Bedeutung und ein innovativer Ansatz im Hinblick auf die sich verändernden klimatischen Bedingungen. Bäume und Retentionsstreifen erbringen im urbanen Umfeld wichtige Ökosystemleistungen und tragen als CO2-Speicher, Sauerstoffproduzent und Binder des Feinstaubs massgeblich zur Luftqualität bei. Zusammenhängende Baumreihen und Grünkorridore reduzieren das Aufheizen des Bodens und lassen eine kühlende Durchwindung entstehen. Im Hinblick auf das zukünftige Stadtklima sind sie folglich wichtige Mittel zur Temperaturregulierung.
Die Überbauung Grünau (1975-76) in Altstetten ist eines der wenigen realisierten Grossprojekte seiner Zeit in Zürich. Nach dem modernistischen Vorbild von Le Lignon in Genf wurden mehrfach abgewinkelte Wohnkörper zu einem druchgängigen Grünraum gestellt. In diesem stadtnahen Trabanten sollte die Stadtflucht der Achtzigerjahre aufgefangen werden, eine moderne Oase, nahe am Erholungsgebiet Werdinsel, mit direkter Autobahnanbindung. Bezahlbare, aber hochwertige Wohnungen mit Pfiff waren gesucht. Realisiert wurde das ambitionierte Projekt im Auftrag der Stadt Zürich.
Heute präsentiert sich eine umgekehrte Welt:
Die Siedlung ist in die Jahre gekommen, die Bausubstanz bröckelt und die grosszügigen Freiflächen werden kaum benutzt. Die soziale Entmischung der Bewohner wirft Fragen auf; so wird die Siedlung Grünau zunehmend von jenen genutzt, zu ebendiesen bei der Errichtung Distanz gesucht wurde.
Die Chance der Wirtschaftlichkeit
Mit dem Übergang zweier Häuser, Tüffenwies 31&33, an die ‘Baugenossenschaft Frohes Wohnen Zürich’ eröffnete sich die Möglichkeit, dieser Teil aus dem denkmalpflegerischen Inventar zu erneuern. Dabei galt ein besonderes Augenmerk der Struktur der Häuser, welche über die gesamte Anlage mit den gleichen Prinzipen angelegt wurde: Offene Erdegeschosse, gemeinschaftliche Dachterrassen, vielseitige Erschliessungsformen, kompakte Wohnungen, vorfabrizierte Betonelemente.
Es wurden unterschiedliche Szenarien ausgearbeitet, auf ihre Wirksamkeit und deren Kostenverhältnis geprüft. Auf diese Weise hat man eine umfassende Sanierung der gesamten Gebäudehülle als Konzept aufgegeben. Die vier Zentimeter Korkdämmung der bestehenden Fassadenelemente hätten dabei auf der Innenseite nachgebessert werden müssen, bauphysikalisch sind damit die fixen Anschlüsse der Betonfertigteile an die Decken kaum in den Griff zu kriegen. Dazu hätten die Bewohner das Haus während der Bauzeit verlassen müssen. Der Nutzen des massiven Eingriffes stand in keinem Verhältnis zu seinen Kosten.
Das gewählte Massnahmenpaket sieht eine Auswahl zielgerichteter und effektiver Eingriffe vor:
Eine Strangsanierung mit neuen Küchen, Bädern und dem Entfernen der asbesthaltigen Materialien stellt die Gebrauchstauglichkeit für die Bewohner wieder her:
Terrassen und der EG-Decke wurden energetisch instandgesetzt. Damit kommt die Energieeffizienz der Anlage gemäss GEAK neu in Kategorie C zu liegen. Im Erdgeschoss sind die Massnahmen am deutlichsten sichtbar: 28 nachträglich eingebaute Stahlstützen wurden für den Brandschutz einbetoniert, die dazugehörigen Flügelmäuerchen entfernt, um dem Erdgeschoss seine ursprüngliche Grosszügigkeit zurückzugeben. Auf der Basis einer ‚archäologischen‘ Farbuntersuchung wurde das originale Farbkonzept nach sechs bunten Schichten rekonstruiert, an die heutigen Bedürfnisse angepasst und durchgänig umgesetzt. Die Abhangdecke über dem Erdgeschoss konnte von nachträglichen Aufdopplungen gelöst werden, ihr neuer Randabschluss spielt nun auf eine subtile Weise die Lesbarkeit der Unterzüge an der Fassade wieder frei. Ein Lichtkonzept verbessert die Ankunftssituation der Bewohner am Abend, dunkle Ecken mit beschränkter Einsicht verschwinden. Die Fassaden wurden legidlich gereinigt, trotzdem präsentiert sich die Überbauung insgesamt in einem neuen Licht.
Das Bestreben der Baugenossenschaft die Mieten niedrig zu halten hat hier zu einer gemässigten Eingriffstiefe geführt, welche die Gestaltung aus den Siebzigerjahren unterstützend auffrischt. Die Grünau ist heute erneut eine valable Option für ein breites Zielpublikum, mit positiven Folgen für die Wahrnehmung des Ortes. Im Sinne der Denkmalpflege wurde dieses behutsame Vorgehen umfänglich unterstützt.
Was offen bleibt, ist das Schicksal der Siedlung?
„Vielleicht hätte ich damals im Architekturgremium vermehrt für eine zukunftsorientierte, mutige Lösung kämpfen sollen, für ein kompaktes, urbanes Quartier mit Post, Läden und Restaurant im Zentrum, nicht am Rand.“ *1). Der raumplanerische Druck könnte die nötigen Steine in Bewegung setzten, um aus der ruhigen Schlafoase endgültig ein lebediges Quartier zu gestalten.
*1) Robert Schmid, Architekt Tüffenwies 31&33, Tagesanzeiger, Artikel: ‘Ich hätte mutiger bauen sollen’, Datum unbekannt
“Ein Stück Zentrum von Zug”
Das Gebiet Baarerstrasse West – Bahnhof Zug ist Teil des heutigen Zentrums von Zug zwischen Altstadt, See, Bahnhof und Metalli. In den nächsten 10 bis 15 Jahren soll es dank des Stadttunnels Zug verkehrsberuhigt und für Einwohner, Arbeitende und Besucher attraktiver werden. Mit dem Schwerpunkt Bahnhof in der Stadtentwicklung und der zunehmenden Bedeutung der nördlichen Quartiere um die Baarerstrasse und die Nordzufahrt verschiebt sich der Schwerpunkt des öffentlichen Lebens nach Norden. Im Gebiet Baarerstrasse West – Bahnhof Zug kann und muss daher “ein Stück Zentrum von Zug” entstehen. Dies spiegelt sich nicht zuletzt im Verdichtungspotenzial, das Stadt und Kanton an diesem Standort vorsehen, und darin, dass das Hochhauskonzept der Stadt um den Bahnhof sein Kerngebiet hat.
Stadtraum – Freiraum
Das ganze Areal Baarerstrasse West / Bahnhof Zug ist als ein grosser Stadtplatz konzipiert, in dem vier kompakte Baukörper stehen. Zum Bahndamm hin entsteht auf der ganzen Länge des Areals ein grosser städtischer Freiraum. Die Baukörper fassen drei Bereiche, die den bahnseitigen Freiraum mit der Baarerstrasse verbinden: einen zentralen, grosszügigen Bereich zwischen den beiden mittleren Baukörpern auf der Höhe des Hauptdurchgangs des Bahnhofs (Zugang zur Schalterhalle), und zwei schmalere Bereiche jeweils zwischen den beiden nördlichen beziehungsweise südlichen Baukörpern. Diese schmaleren Bereiche befinden sich auf der Höhe der weiteren Zugänge zu den Gleisen.
Ein sechsgeschossiger Sockel übernimmt die Höhe des umliegenden Stadtkörpers. Daraus herausragende Türme bilden eine Silhouette. Sie sind in Massstäblichkeit und Geometrie untereinander verwandt und stellen überdies einen Bezug zu den weiteren Bauten in der Innenstadt her. Die Gliederung der Überbauung in vier ähnlich grosse Baukörper unterstützt in Übereinstimmung mit den Grundeigentümerstrukturen die etappenweise Realisierbarkeit.
Volumetrie und Setzung
Die beiden letzten Bausteine sollen einen eigenständigen Beitrag zum Areal leisten, sich aber dennoch gut in die bereits vorhandene räumliche Struktur einfügen. Besonders wichtig ist dabei die Figur des zentralen Parks, der durch die zwei neuen Bauten räumlich gefasst und damit komplettiert wird. Darüber hinaus kommt den beiden Bauten für die Adressierung des Ostareals zur Nordzufahrt eine Wichtige Bedeutung zu.
Die Überschneidung zwischen den beiden Volumen im Bereich des Durchgangs wird durch die Stellung der Bauten minimiert. Durch ihre Stellung bilden die beiden Neubauten zusammen mit dem angrenzenden Gebäude S41 eine belebte Fassadenfront zur Nordzufahrt mit einem kleinen Vorplatz und 20 Parkplätzen aus. Auf der Parkseite entsteht eine flexibel nutzbare Fläche vor dem kleineren Haus, welche zum angrenzenden Gebäude S22 vermittelt. Den räumlichen Abschluss des Parks bildet somit die begrünte, geschwungene Mauer, welche durch die Stellung der angrenzenden Bauten aus dem gesamten Park gut sichtbar ist.
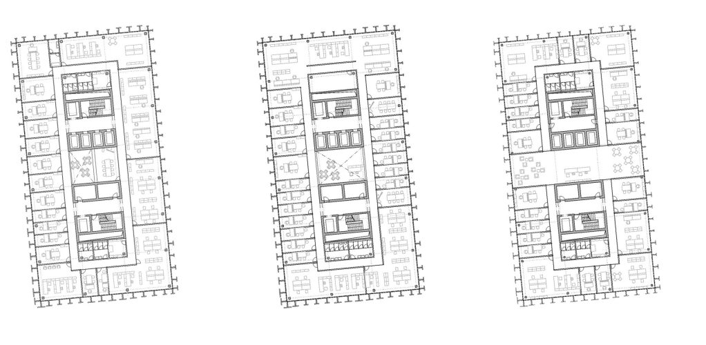
Gebäude S43
Das grosse Haus ist als reines Büro- und Dienstleistungsgebäude mit einer Geschossfläche von 14‘140m2 (exkl. UG) konzipiert.Die beiden zentral angeordneten Erschliessungskerne spannen einen Zwischenraum auf, welcher im EG als zentrale Lobby mit Atrium ausgebildet und auf den Regelgeschossen flexibel als Empfangs- und Begegnungszone, als Sitzungs- und Pausenbereich oder als Co-Working-Fläche genutzt werden kann. Versetzte Deckendurchbrüche lassen in dieser Zone hohe ineinandergreifende Räume entstehen und stellen den räumlichen Bezug zu den darüber- und darunterliegenden Geschossen her. Es entsteht eine Raumfigur, die sich im Schnitt über alle Geschosse zieht und Sichtbeziehungen zu den benachbarten Mietflächen etabliert. In diesem Bereich sind sog. “shared spaces” angedacht, die durch verschiedene Mietparteien gemeinsam genutzt werden können. Aufgrund der rückwärtigen Erreichbarkeit der Fluchttreppenhäuser, ist dieser Bereich nicht als Fluchtweg einzustufen und kann frei möbliert werden. Werden mehrere Geschosse an denselben Mieter vergeben, kann die Mittelzone in Abhängigkeit der Brandabschnittsgrössen auch mit offenen Galerien ausformuliert werden (siehe Brandschutzkonzept). Angrenzend an diese mittige Erschliessungszone befinden sich flexibel unterteilbare Mietflächen, die sowohl als Grossraumbüros genutzt als auch in kleinere Einheiten unterteilt werden können. Die Elementfassade mit einem Raster von 2.7m resp. 1.35m erlaubt hier eine sehr hohe Flexibilität in der Raumunterteilung.
Gebäude S45
Aus der Anforderung, Büro- und Wohnnutzungen aufnehmen zu können ergeben sich für das kleine Haus andere Anforderungen in Bezug auf Grundfläche und Gebäudetiefe. Eine Geschossfläche von 900m2 ermöglicht es, das Haus mit nur einem Fluchttreppenhaus betreiben zu können. Obwohl das Gebäude grundsätzlich als Büro- und Dienstleistungsgebäude konzipiert ist, lassen die resultierenden Gebäudetiefen lassen auch eine Wohnnutzung zu. Für den Grundriss wurden Module für Grosswohnungen und Studios entwickelt, welche sich auch mit Büros auf dem gleichen Geschoss kombinieren lassen. Der mittig angeordnete Erschliessungskern ist so ausgelegt, dass er für die unterschiedlichen Nutzungen je einen separaten Zugang im Erdgeschoss ermöglicht. Wie im grossen Haus sind auch die Mietflächen im kleinen Haus sehr flexibel nutz- und unterteilbar. Es sind sowohl offene als auch unterteilte Layouts mit jeweils eigenen Zugängen aus der mittigen Erschliessungszone realisierbar.
In Kreuzlingen, direkt am beliebten Radweg um den Bodensee, entsteht das neue Gebäude der Firma „Tour de Suisse Rad AG". Das Gebäude verbindet Produktion, Büro, Lager, Ausstellungsfläche und ein Café unter einem Dach.
Eine markante Eingangsfassade in Sichtbeton bespielt den vorgelagerten Platz, wo sich Kunden eine kurze Pause und Wasser gönnen, oder ihr Rad neu aufpumpen können. Von dort aus entwickelt sich das Gebäude auf zwei Geschossen über 100m entlang der Seetalstrasse und der Geleise.
Grosse Fassadeneinheiten unterteilen die Fassade in eine rhythmische Abfolge. Ostseitig zum Kreisel bietet ein grosses Schaufenster Platz zur Präsentation der Firma und ihrer Produkte. Im offenen Café- und Ausstellungsbereich geben grossformatige Öffnungen Einblick und ermöglichen eine gute Belichtung der Arbeitsplätze. Der Lagerbereich wird über transluzente vertikale Streifen belichtet und verdeutlicht, dass hier der Anspruch über eine rein funktionale Architektur hinauszeigt.
Das Wohnhaus an der Konkordiastrasse liegt in einem städtischen Villenquartier von Zürich Hottingen. Das benachbarte, mehr als 300 Jährige Winzerhaus prägt den Ort ebenso wie eine eindrückliche, alte Linde, die auf dem kleinen Grundstück steht. Die Volumetrie des Hauses fügt sich in ihrer polygonalen Form selbstverständlich in den Bestand ein und vermittelt zwischen der städtebaulichen Setzung der Villen und dem alten Winzerhaus, welches diesbezüglich eine Ausnahme darstellt. In der Fassade lehnen sich Themen wie die gewählten Fenstereinfassungen und ein hochwertiger Putz dem Ort an. Auch das steile Mansardendach mit Lukarnen ist ein weit verbreitetes Sujet im Quartier. Der Grundriss staffelt Wohn- und Schlafbereiche offen aneinander, wodurch trotz begrenzter Fläche ein vielfältiger Innenraum entsteht. In der Konstruktion des Hauses liegt die überraschendste Entwicklung; dank innovativen Lösungen des Ingenieurs kann das gesamte Haus - inklusive Decken, Treppenhaus & Liftschacht - in einer Holzbauweise realisiert werden. Dadurch gelingt ein zügiger Bauablauf mit minimalen Installationen und ein bauökologisch einwandfreies Gebäude, das im Innenraum etwas von seiner Andersartigkeit spüren lässt.
Der Projektperimeter zwischen der Tössfeldstrasse und dem Gleisfeld grenzt unmittelbar an den Bahnhofplatz und vereint die Qualitäten einer optimalen Verkehrsanbindung mit denjenigen eines beschaulichen Wohnquartiers mit guter Nahversorgung. Die Weite des Gleisfeldes mit dem gegenüberliegenden Bahndamm mit der prägnanten Lindenreihe, der Bahnhof mit den bestehenden Bauten sowie der Bahnhofplatz prägen die Atmosphäre des Ortes. Diese Qualitäten sollen bewahrt und mit dem Neubau zu einem Ensemble gefügt werden.
Das neue Gebäude wird als langer, schmaler Riegel nahe ans Gleisfeld gesetzt. Die Wohnungen orientieren sich ohne Filter in den offenen Gleisraum. Der Abstand ist so ausgelegt, dass die Privatsphäre der Wohnungen im Erdgeschoss und ihrer Sitzplätze gewahrt bleibt, zumal diese gegenüber dem Gleisniveau etwas erhöht sind. Mit dem wellenförmigen Verlauf der Sitzplätze wird die Parallelität der Geleise gebrochen und der Bezug in die Länge des Gleisraumes unterstützt.
Ausgangslage
Das Areal Sihlmatten ist durch seine spezielle insuläre Lage im Landschaftsraum des Sihltals charakterisiert. Die Landschaft bildet hier den räumlichen und massstäblichen Bezugsrahmen. Die bestimmenden Elemente sind gleichzeitig auch die wesentlichen identitätsstiftenden Qualitäten des Ortes: die Topographie, der Wald und der Fluss. Die Lage der Sihl auf der Südseite des Areals steht in spannungsvollem Kontrast zur ruhigen Nordseite mit der bewaldeten Hangflanke.
Projekt
Das neue Quartier entsteht in einem grosszügigen Auenpark auf der idyllisch gelegenen, südexponierten Landschaftskammer. Über die Brücke gelangt man künftig auf einen zentralen Platzbereich, der das Zentrum des neuen Quartiers bildet. Der Bebauungsvorschlag basiert auf 3 abgewinkelten Riegelbauten mit einer Gesamtlänge von ca. 300m, die in der Höhe zwischen 6 und 10 Vollgeschossen variieren. So entsteht ein mäandrierendes, in der Höhe gestaffeltes Ensemble von 3 Gebäuden, das sich gut in den linsenförmigen Baubereich einfügt. Über die versetzten Zwischenräume erfolgt eine räumliche Verschränkung von Vor- und rückwärtigem Freiraum: Der Wald und der Flussraum gehen zwischen und unter den Gebäuden ineinander über. Die Stellung der Bauten resp. der Zwischenräume ist so gewählt, dass die Nachmittags- und Abendsonne im Sommer trotz der grossen Volumen in die Tiefe der Parzelle vordringen kann. Die Trennwirkung zwischen Vorne und Hinten wird dadurch minimiert. Es entstehen differenzierte Aussenräume mit unterschiedlichen Qualitäten und Nutzungsprofilen.
Die Überbauung besteht aus zwei ähnlichen aber nicht identischen Baukörpern. Die Untergeschosse werden talseits freigelegt und zu Wohn- und Aufenthaltszwecken ausgebaut. Insgesamt umfasst die Überbauung 25 Wohneinheiten sowie 1 Siedlungslokal. Alle Wohnungen verfügen über mindestens einen grossen Balkon resp. Terrasse oder Gartensitzplatz.
Die Umgebungsgestaltung reagiert auf die Exposition und die Topographie. Im aufgrund der Lärmbelastung durch die Dorfstrasse nur schwer bebaubaren östlichen Bereich des Perimeters wird ein grüner Filter aus Bäumen und Hecken geschaffen, welcher nebst den Spiel- und Aufenthaltsflächen auch 17 Aussenparkplätze und die Zufahrt zur Tiefgarage beinhaltet. Entlang dieser gestalteten Bereiche führt ein Fussweg von der Dorfstrasse bis zur Rebhaldenstrasse, ab welchem die beiden erschlossen werden können. Alle Häuser sind rollstuhlgerecht erschlossen.
Die Häuser sind als klassische Hybridbauten gebaut. Die Erschliessungskerne sowie die Geschossdecken und Innenwände werden in Stahlbeton resp. Mauerwerk ausgeführt, die nicht-tragende Fassade wird in Elementbauweise aus Holz erstellt. Das Dachgeschoss wird komplett als Holzbau ausgeführt (inkl. Innenwände). Als Fassade ist eine hinterlüftete Holzlattung vorgesehen, wobei die Fenster in Holz-Metall ausgeführt werden. Das Flachdach wird mit Ausnahme der durch gebäudetechnische Anlagen besetzten Stellen (Sonnenkollektoren) extensiv begrünt.
Die beiden Häuser befinden sich am nördlichen Ausläufer des Zürichbergs beim Waldgarten Schwamendingen. Eingespannt zwischen der Winterthurer- und Frohburgstrasse liegt die Parzelle rückwärtig als schmales Verbindungsgrundstück.
Die nächste Umgebung zeichnet sich durch relativ heterogene Wohnüberbauungen aus verschiedenen Epochen und verschiedenen Massstäben aus. Das Projekt übersetzt in der volumetrischen und aussenräumlichen Form wie im architektonischen Ausdruck diesen städtebaulichen Kontext. Die 3 Gebäude mit 3 Vollgeschossen werden durch das Weglassen einer Attika niedriger als die Umgebung gehalten. So konnten Näherbaurechte ausgehandelt, die kleinen Wohnungen besser organisiert und für alte Menschen besser erreichbar gemacht werden.
Die Wohnungen sind als Geschosswohnungen organisiert. Alle Wohnungen verfügen über drei Ausrichtungen und profitieren damit von verschiedenen Lichtstimmungen und Ausblicken. Die Wohnungen in den Obergeschossen verfügen über einen geschützten Balkon, im Erdgeschoss verfügen sie über halbprivate Gärten.
Baukörper und Aussenraum
In Anlehnung an den heutigen Bestand verbindet auf der östlichen Seite entlang der Parzellengrenze, begleitet von Gehölzpflanzen ein privater Weg die Frohburgstrasse und die Winterthurerstrasse. Die drei Häuser können von beiden Strassen und von der Frohburgstrasse speziell ebenerdig erschlossen werden. Die Aussenraumgestaltung verändert das heutige Terrain nur sehr moderat. Der Weg bildet das Rückgrat der Parzelle und entlastet die westliche Seite für die Wohn- und Gartennutzung von jeglicher Erschliessung. Somit erweitert sich der erlebbare Aussenraum um den bestehenden dicht gewachsenen Grünraum. Die Zugänge und die Räume zwischen den Häusern sind als vielfach nutzbare Flächen ausgebildet.
Konstruktion
Die Fassade des Massivbaus wird verputzt. Die helle gräuliche Fassade und die grosszügigen Öffnungen erlauben eine urbane Lesbarkeit. Der Volumenübergreifende der Topographie folgende Sockel und das Zusammenspiel der in unterschiedlicher Richtung geneigten Flachdächer fügen die Volumen als Einheit zusammen. Die Vordächer schützen vor übermässiger Verwitterung.
Die Bebauungsstruktur im Gebiet der Sandfoore und der umliegenden Wohnquartiere zeichnet sich durch einen hohen Grad an Heterogenität aus. Das Projekt antwortet mit einer ambivalenten Figur, die sowohl als 3 Einzelgebäude als auch als Grossform mit einer hofartigen Mitte gelesen werden kann. Den Ersatzneubauten gelingt es, typologisch und atmosphärisch am Bestand anzuknüpfen und trotz einer deutlich höheren Bebauungsdichte eine zusammenhängende Überbauung zu generieren und im heterogenen Kontext zu verankern.
Wohnen: Pro Treppenhaus werden jeweils mit dem angelagerten Velo- und Kinderwagenraum zwei Wohnungen erschlossen. Dies ermöglicht es, alle Wohnungen gleichzeitig zum Strassen- als auch zum Hofraum zu orientieren ("Durchwohnen"). Alle Wohnungen verfügen über einen halbeingezogenen Balkon oder eine Terrasse auf der Sonnenseite.
Die Wohnungsgrundrisse der Obergeschosse basieren auf einem Grundmodul, welches 2.5-/3.5-/ 4.5-Zimmer-Wohnungen pro Kern kombiniert. Die Nasszellen sind mittig zwischen den Kernen eingespannt und jeweils auf die Erfordernisse der Wohnungsgrössen abgestimmt. .
Konstruktion und Ausdruck: Die Gebäude sind als Hybridbauten vorgesehen, d.h. die Primärstruktur (Erschliessungskerne, Geschossplatten, Wohnungstrennwände) werden in Stahlbeton ausgeführt, während die Aussenwände aus vorfabrizierten Holzelementen vorgesehen sind.
Die Gebäude suchen eine kontextuelle und stimmungsmässige Verwandtschaft zu den umliegenden Bauten. Um die Grösse des geforderten Bauvolumens zu unterspielen, werden die Häuser mit einer vertikalen gegliederten Holzfassade bekleidet. Das Öffnungsbild reagiert in Abhängigkeit der Ausrichtung unterschiedlich. Die gut besonnten südlich orientierten Fassaden weisen einen höheren Öffnungsanteil auf als die nördlich ausgerichteten Fassadenbereiche. Zusätzlich verfügen die Südfassaden über Balkone mit halbhohen Massivbrüstungen mit Staketen-Geländern. Somit kann eine gute Besonnung/Belichtung mit einem angemessenen Sichtschutz kombiniert werden.
Klappentext Unsere Siedlungsgebiete haben sich grundlegend verändert. Neue, faszinierende und verstörende urbane Konstellationen sind am entstehen. Anhand von sechs Begriffen – Zentralität, Diversität, Interaktion, Zugänglichkeit, Adaptierbarkeit und Aneignung – hilft das Buch, Qualitäten und Defizite in den neuen urbanen Gebieten festzustellen. Als praxisorientiertes Arbeitsinstrument richtet es sich an Planerinnen, Architekten, Studierende und alle, die sich in der aktuellen Städtebau- und Raumentwicklungsdebatte mehr für Qualitäten und Potentiale als für Hektardichte und Ausnutzung interessieren.
Forschungsgruppe und Autorenkollektiv ETH Zürich: Marc Angélil, Rebecca Bornhauser, Kees Christiaanse, Maik Hömke, Thomas Kissling, Philipp Klaus, Simon Kretz, Lukas Kueng, Vittorio Magnago Lampugnani, Gabriela Muri-Koller, Rahel Nüssli, Verena Poloni Esquivié, Christian Schmid, Caroline Ting, Günther Vogt.
Birmensdorf hat als typische suburbane Wohngemeinde in den vergangenen Jahren aufgrund der verbesserten Erschliessungssituation (Autobahn A4 Knonaueramt) an regionaler Reichweite und Bedeutung gewonnen. In diesem Kontext zeichnet sich das Areal Ämet durch seine attraktive Lage am Siedlungsrand sowie durch die sanft in südwestlicher Richtung abfallende Topographie mit Fernsicht aus. Die am Südhang eines sanften Hügelzugs sowie Lage zwischen Bahnhof mit Dorfzentrum und offener Landschaft machen das Ämet als Wohngebiet besonders attraktiv.
Das Projekt versucht die spezifischen Qualitäten des Ortes unter Berücksichtigung der sehr detaillierten Vorgaben des Gestaltungsplanes in eine Wohnüberbauung zu übersetzen, welche den Übergang zwischen Siedlung und Landschaft thematisiert. Wir schlagen je sechs Wohngebäude vor, welche auf zwei Grundtypen basieren: Typ 1 mit zwei und Typ 2 mit drei Wohnungen pro Geschoss. Durch die versetzte Gruppierung der Wohneinheiten um die Erschliessungskerne entstehen differenzierte Gebäude mit klaren und ruhigen Kubaturen, welche Teilweise in Reaktion auf die Topographie leichte Geschossversätze aufweisen. Durch Variation der Grundtypen in Bezug auf Wohnungsmix, Topographie und Zugänge entstehen schliesslich pro Gebäudetyp vier leicht voneinander abweichende Untervarianten.
Das Projekt versucht auf die unterschiedlichen Bedingungen von werdender städtischer Achse an der Dübendorfstrasse und rückwärtigem Gartenstadtquartier zu vermitteln und die unterschiedlichen atmosphärischen Qualitäten zu einer spezifischen Architektur zusammenführen. Das Gebäude besteht aus einem Sockelbaukörper, der auf der Erdgeschossebene annähernd den gesamten Baubereich besetzt und die gewerblichen, gastronomischen und betrieblichen Nutzungen aufnimmt.
Über dem Sockel löst sich das Volumen in zwei Gebäude auf: Einem Langhaus entlang der Dübendorfstrasse und einem typologisch verwandten aber deutlich kürzeren Hinterhaus an der rückwärtigen Quartierstrasse. Zwischen den beiden Gebäuden stehen zwei Treppenhäuser, welche beide Bauten erschliessen, volumetrisch zusammenbinden und somit einen privaten Lichthof bilden, über welchen die Intimität der mittig angeordneten Wohnungen trotz der räumlichen Nähe gewährleistet bleibt.
Während ca. die Hälfte der Wohnungen direkt aus den Treppenhäusern erschlossen wird, sind die Flanken des Langhauses über die Laubengänge erschlossen, welche neben ihrer Erschliessungsfunktion auch wichtige Begegnungsräume sind. Alle der insgesamt 65 Kleinwohnungen vom Typ Eco sind mindestens zweiseitig orientiert und reagieren auf ihre jeweils unterschiedliche Lage im Gebäude mit entsprechendem Grundrisslayout. Die Laubengang-Wohnungen weisen ein vom Essbereich mit Küche abgetrenntes privates Wohnzimmer auf, während die an den Lichthof angrenzenden Wohnungstypen durch einen von Fassade zu Fassade gehenden Wohnraum charakterisiert sind.
Transfer - Global Architecture Platform ist ein neues unabhängiges digitales Online-Projekt, dass mittels eigenständig produzierten Beiträgen zeitgenössische Ideen und Praktiken miteinander verbindet und versucht eine architektonische Kultur zu vermitteln. Transfer veröffentlicht eine Reihe von Monographien und wöchentlich erscheinende Artikel, mit dem Ziel, neue Wege der Darstellung und Erfahrung der digitalen Medien zu entdecken.
Transfer wird von einem Team mit langjähriger Erfahrung in der Architekturpublikation geführt.
Autorenkollektiv : Josep Lluis Mateo, Augusti Obiol, Isabel Concheiro, Anna Hotz Semadeni, Ramias Steinemann
www.transfer-arch.com
Städtebauliche Setzung
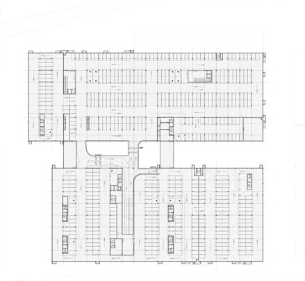
Viele wesentliche Eigenschaften des Projektvorschlags für das Parkhaus P10 „Oberhau“ werden bereits mit der städtebaulichen Setzung der ersten Etappe sowie der optionalen Etappen 2 und 3 bestimmt. Die vorgesehene Positionierung der Volumen erlaubt es, ein optimal an den ÖV angeschlossenes Parkhaus mit 3000 Parkplätzen zu erstellen, welches ohne jegliche Beeinträchtigungen des Betriebes zu einem späteren Zeitpunkt in einem oder zwei Schritten um 2‘000 Parkplätze erweitert werden kann. Eine Konzentration der ersten Etappe im Nordosten der Parzelle führt zu einer optimalen Anbindung an die bestehende Passerelle zum Viadukt der Glatttalbahn, welche in der Mitte der an die Flughofstrasse angrenzenden Fassade zu liegen kommt.
Erschliessung / Parkierung
Der Zugang von der Passerelle her erfolgt im 3. Obergeschoss direkt an der Servicezone. Diese besteht aus einem grosszügigen Eingangsbereich mit den WC-Anlagen, dem Hauswartbüro, den Ticketautomaten, den Liften und der Haupttreppe. Ein weiterer Zugang befindet sich an derselben Stelle im Erdgeschoss. Die vertikale Erschliessung für die Fahrzeuge über zwei Wendelrampen ist so positioniert, dass sie durch spätere Baustellen nicht beeinträchtigt wird. Ihre Dimensionierung ist so ausgelegt, dass bei gleicher Nutzungsart auch mehr als 5’000 Parkplätze bzw. eine intensivere Nutzung mit höheren Frequenzen möglich wären.
Die Parkfelder sind in den regulären Ebenen vertikal angeordnet und dank der gewählten Tragstruktur stützenfrei. Sie werden in Etappe 1 entlang von vier Längsfahrgassen angeordnet, die jeweils an den Enden mit einer Querfahrgasse miteinander verbunden werden. So entsteht ein flächenoptimiertes und übersichtliches Parkierungssystem, bei dem die Benutzer freie Parkfelder auch ohne Einzelplatzüberwachung schnell auffinden können. Sämtliche Fahrgassenbreiten erfüllen die Normvorgaben für Gegenverkehr.
Konstruktion
Die für die erste Etappe vorgesehene Bauweise ist eine Kombination aus Stahl- und Betonelementen. Erstere sind für die vertikale Lastabtragung vorgesehen und fügen sich dank ihren schmalen Abmessungen ideal in die Parkfelder ein. Sie kommen auf Pfahlbanketten zu liegen, über welche die Lasten auf jeweils zwei Grossbohrpfähle verteilt werden. Aufgrund des gewählten Brandschutzkonzeptes sind Bauteile aus Stahl ohne Anforderungen verwendbar. Die Betonelemente wiederum bilden die Deckenplatten, sie bestehen aus einem Verbund aus Primärträgern von Stütze zu Stütze in Längsrichtung und Rippenplatten welche von dort ausgehend jeweils 16.5m in Querrichtung überspannen. Durch einen Überbeton werden die einzelnen Elemente kraftschlüssig miteinander verbunden. Zur Sicherung der Langlebigkeit der Betondecken werden diese mit einem Belag aus aufgehelltem Gussasphalt versiegelt.
Auch wenn eine Fassade nicht explizit gewünscht wurde hat ein Bauwerk dieser Grösse doch eine unübersehbare Ausstrahlung und tangiert damit auch ein öffentliches Interesse. Es wurde daher versucht mit einer minimalen Überformung der an der Fassade liegenden Betonelemente eine Gesamtwirkung zu erzielen, welche das 100 x 70 x 30m umfassende Volumen leicht und attraktiv erscheinen lässt. Alle weiteren Elemente wie die Stahlträger sowie die für Anprallschutz und Absturzsicherung zuständigen Brüstungs-Netze werden so eingefärbt, dass sie optisch in den Hintergrund treten. Durchbrochen werden die von den Betonplatten und Brüstungselementen gebildeten Bänder somit nur durch die Fluchttreppenhäuser, welche jeweils mittig an der Fassade zu liegen kommen. Sie gliedern das ansonsten ruhige und zurückhaltende Fassadenbild. Bei der Gestaltung wurde grosser Wert darauf gelegt, das Parkhaus in jeder Etappierungsstufe abgeschlossen und ansprechend erscheinen zu lassen. Der Eindruck eines halbfertigen Bauwerks soll unbedingt vermieden werden.
Ausgangslage
Zahlreiche Autobahnraststätten sind funktionale Infrastrukturen, welche monofunktional auf die Bedürfnisse des Verkehrs ausgerichtet und für ihr unmittelbares Umfeld nicht zugänglich sind. Gerade im Kontext der IBA ist es wichtig über die Weiterentwicklung solcher hermetischer Bautypen nachzudenken, diese weiterzuentwickeln und Konzepte und Strategien zu entwickeln, welche auf weitere ähnliche Bau- und Planungsaufgaben angewendet werden können. In diesem besonderen Fall bedeutet dies, einer monofunktionalen und kontextfremden großmaßstäblichen Interventionen mit landschaftsgestalterischer und architektonischer Differenziertheit zu begegnen und deren Bezüge über die Funktionalität der Tank- und Raststättenanlage hinaus in das lokale Umfeld zu erweitern.
Die kulturgeschichtliche und archäologische Bedeutung des Leubinger Fürstenhügels sowie die geforderten Maßnahmen im Rahmen des landschaftspflegerischen Begleitplanes zur A71 bieten die Möglichkeit, die geplante Anlage inhaltlich und gestalterisch einzubinden und auszudifferenzieren. Die Anlage soll einerseits den funktionalen Anforderungen an eine Tank- und Raststätte gerecht werden, gleichzeitig spezifisch wirken und auch von außen, d.h. nicht nur mit dem Auto erreichbar sein.
Landschaft
Die Integration der Infrastruktur in die Landschaft ist eine der ersten Schritte dazu. Die Landschaft ist heute stark geprägt durch eine grossmasstäbliche Agrarnutzung, in der Reste landschaftlicher Elemente liegen. Die grundliegende Topografie ist eine der Kernelemente der Landschaft, die trotz der Ausräumung der Landschaft und des starken Einschnitts des Autobahnbaus dauerhaft erhalten und ablesbar bleibt. Auf diesem Grundkontext von Topografie und der sich darauf ergebenden Bewegung basiert die Gesamtgestaltung der Anlage.
Die Masstäblichkeit der Schwünge und Bewegungen der Autobahn steht in Relation zur Geschwindigkeit der Fahrzeuge. Für die Besucher der Raststätte, die sich in der Anlage zu Fuss bewegen, ergeben sich andere Masststäblichkeiten, ebenso für die Radfahrer. Dieses Konzept der Schwünge greift in die vorhandene Bewegung der landschaftlichen Topografie mit ihren teilweise subtilen Ausprägungen. Die künstliche Topografie des Fürstenhügels stellt dazu einen historischen Kontrapunkt dar, auf den sich die Wegeführung hin ausrichtet.
Tankstelle und Raststätte
Zwei lange Dächer gliedern und strukturieren den Perimeter an der Schnittstelle zwischen dem bewaldeten südlichen Teil der Anlage und dem Parkplatz und dem Fürstenhügel im Norden. Der Entwurf schlägt zwei präzis gesetzte lange Bauten vor, welche durch ihre Ausrichtung und ihre Horizontalität zwischen dem Verkehrsbereich, der Autobahn und dem landschaftlichen Hintergrund vermitteln.
In Bezug auf die Tankstelle wurde dem Aspekt der Funktionalität große Bedeutung beigemessen. Dieser Teil der Anlage ist auf einen möglichst einfachen und optimierten Ablauf des Tankstellenbetriebs ausgerichtet und gruppiert unter einem langen Dach nebst den Betankungsplätzen einen kleinen Tankstellen-Shop mit Kasse und Lager sowie zwei separate Toiletten. Die Tankstelle bietet über die Betankung von Fahrzeugen hinaus ein minimales Angebot für Besucher, die lediglich Tanken und dann weiterfahren wollen.
Das eigentliche Raststättengebäude wurde rund 30m nördlich in unmittelbarer Nähe zu den Kurzzeitparkplätzen positioniert. Typologisch orientiert es sich an der Tankstelle und fasst die übrigen Nutzungen des Raumprogramms unter einem zweiten langen Dach zusammen. Es richtet sich an Besucher, welche rasten, sich verpflegen oder verweilen möchten. Die sanitären Anlagen und der Wirtschaftsbereich werden als geschlossene Volumen ausformuliert und bilden damit unter dem allseitig über die Fassade auskragenden Dach einen klar strukturierten und flexibel nutzbaren Kundenbereich, in welchem der Shop, der Ausstellungs- und Infobereich und das Restaurant fließend ineinander übergehen.
Ziel des Neubauprojektes Monbijou in Grenchen ist es, zusätzliche Verkaufs- und Gewerbeflächen sowie Wohnraum zu schaffen.
Der Bauplatz befindet sich direkt angrenzend an das Ruffini-Quartier, das im ISOS geschützt ist.
Die Parzelle liegt am Fuss des Grenchenberges in Verlängerung der markanten topographischen Geländezunge des Bahnhofes Grenchen Nord. Bereits in den 50er Jahren wurde hier die Grossüberbauung Lingeriz/Ruffini als Antwort auf die Wohnungsnot erstellt und so eine erste Verbindung der beiden Gemeinden geschaffen. Mittlerweile ist der Bauplatz in eine zusammenhängende Siedlungsfläche eingebettet die noch heute von den genossenschaftlichen Wohnformen mit dem (Ruffini) Hochhaus geprägt wird. Städtebaulich besteht die Herausforderung
darin, einen lokalen Schwerpunkt zu schaffen welcher die Identität des gesamten Quartiers bestärkt.
Das vorgeschlagene Projekt leitet sich formal aus der auf die Bielerstrasse ausgerichteten Stadtstruktur und den topografischen Gegebenheiten ab, das Gebäude entwickelt sich aus der Topographie heraus.Typologisch handelt es sich um einen Turm mit Sockelgeschoss.
Nutzung
Das Erdgeschoss kann mit Ausnahme der Erschliessungsflächen vollständig für Verkaufsgeschäftegenutzt werden. Das Hochhaus wird mit Ausnahme des 2. Obergeschosses ausschliesslich mit Wohnungen bespielt.
Die Parzelle der Wohnüberbauung Seeblick liegt direkt am Bahnhof Oberdorf in Horgen. Auf dieser sollen zwei Volumen mit insgesamt 19 altersgerechten Wohnungen erstellt werden. Die Parzelle wird von Süden her erschlossen, ein Weg entlang der Gleise führt zu den beiden Baukörpern und anschliessend hinunter zur Spätzstrasse. Die Neubauten sind entlang der SBB-Gleise direkt auf die Grenze gebaut, das westliche Volumen bleibt durchgehend sehr schmal, das östliche folgt mit seinen Versätzen der Geometrie der Parzelle. Die Höhenlage der Wohnüberbauung wird durch die Lage des Zugangs entlang der Gleise bestimmt. Um einen ebenerdigen Zugang zu gewährleisten entspricht die Höhenkote des Erdgeschosses derjenigen des Gleisfeldes auf Höhe der Hauseingänge.
Die Fassaden der Baukörper sind durch horizontale Bänder geprägt, welche die Volumen reliefartig umschliessen. Es handelt sich um vorgehängte, hinterlüftete Betonelemente welche zum Teil eingefärbt und geschliffen werden. Sie verleihen den sich ansonsten selbstverständlich in das Ortsbild einfügenden Gebäuden ein unverkennbares Äusseres. Das projektierte Gebäude wird nach dem Minergie-Standard erstellt. Als Energiequelle dienen Erdsonden gekoppelt mit einer Wärmepumpe sowie Sonnenkollektoren auf dem Dach.
Beim Bahnhof Horgen Oberdorf entwickelte sich mit dem Bau der Eisenbahn Zürich–Zug und der Ansiedlung einiger Industriebetriebe ein kleiner Ortskern. Am Fuss des Zimmerbergs auf einer Geländekante gelegen, zeichnet sich die Lage durch ein eineinzigartiges Panorama aus. Der Bauplatz des vorliegenden Projektes befindet sich in eben diesem Gebiet. Er liegt zwischen Gleisachse und der Rotbühlstrasse neben einer grossen Holzscheune und kleineren Mehrfamilienhäusern. Das Projekt interpretiert in der volumetrischen Entwicklung diese spezifische städtebauliche Situation. Vorgeschlagen wird ein fünfgeschossiger, stehender Baukörper, der sich die Abfolge der strassenbezogenen, Bauten typologisch einordnet und gleichzeitig zu den kleinteiligeren Nachbargebäuden als ein gestaffeltes Volumen in Erscheinung tritt. Dieses entwickelt sich in der Fallrichtung des Hanges und nimmt Bezug zur Aussicht die sich von Zürich bis zu den Alpen aufspannt.
Der architektonischen Ausdruck entspringt ebenfalls der starken Zweiseitigkeit der Situation: Zum Gleis erscheint die Rückfassade mit einem kleinen Öffnungsanteil während sich die Seitenfassaden immer mehr öffnen. Die Frontfassade zum See ist mit einem Fensterband komplett geöffnet. Ein der gesamten Frontfassade folgender Balkon schützt vor Einblicken von der Rotbühlstrasse.
Die 5 Wohnungen sind als eingeschossige Einspänner organisiert und verfügen alle über 4 Ausrichtungen. Damit profitiert man von verschiedenen Tageslichtstimmungen und Ausblicken.
Die vier Regelgeschosse sind als 3.5 Zimmer Wohnungen ausgebildet während die Attika als hallenartige Single oder Paarwohnung mit 3.2m hohen Räumen und einer grossen Terrasse ausgeführt wird. Zusammenhängende, grosszügige Wohn- und Essräume bilden jeweils das Zentrum der Wohnung. Das Vermeiden von Korridorsituationen wirkt sich positiv auf die Wohnfläche der verhältnismässig kleinen Wohnungen aus.
Der Neubau wurde in konventioneller Massivbauweise mit Aussendämmung erstellt. Die Fassadenoberfläche wurde in Anlehnung an die nachbarschaftlichen Mehrfamilienhäuser aus dem späten 19. Jahrhundert aus zwei leicht unterschiedlichen Putz-Tönen eingefärbt. Im Innern kommen robuste Materialien zur Anwendung wie Parkettböden und Weissputz an den Wänden. Das kompakte Volumen sowie grosszügige Dämmstärken ermöglichen einen sparsamen Energiehaushalt.
Das prominent gelegene Dienstleistungsgebäude „Am Rietpark“ bildet den räumlichen Abschluss eines neu entstehenden Quartiers in direkter Nachbarschaft zum Bahnhof Schlieren. Es bietet auf 6 Etagen hochwertige und flexible Arbeitsflächen, die effizient erschlossen sind und dank einer innovativen Haustechnik höchsten Komfort bei einem sehr geringen Energieverbrauch bieten. Dank Systemtrennung kann die Haustechnik sehr kurzfristig an veränderte Nutzungsszenarien angepasst werden.
Die exponierte Lage an den Schienen erfordert neben den energetischen Anforderungen auch wegen des Schallschutzes eine technisch hochwertige Fassade. Dank modernster Glastechnik war dies mit nur einer Fassadenschicht möglich, was den Innenräumen eine höchstmögliche Helligkeit und Transparenz verleiht. Gleichzeitig verlangt die hohe Visibilität des Gebäudes eine gestalterisch hoch stehende Optik der Fassade. Dies gelang durch eine Reduktion auf das Wesentliche sowie dem künstlerischen Konzept des Zürcher Künstlers Kerim Seiler, welches die Farben der einzelnen Sonnenstoren zu einer farbigen und sich stetig verändernden Komposition werden lässt.
Das Projekt zeigt die Herausforderung des Bauens an gut erschlossenen bahnhofsnahen Lagen auf.
Die Parzelle an der Weinbergstrasse in Kilchberg liegt in unmittelbarer Nähe zum Bahnhof. Das Projekt zeigt die Herausforderungen des Bauens in extremer Nähe zur Bahn auf, welche einige bauliche Aufwendungen erfordern, damit eine hohe Wohn- und Lebensqualität gewährleistet werden kann.
Das Quartier oberhalb des Bahnhofs zeichnet sich durch Mehrfamilienhäuser und Villen aus. Grosszügige Bauten und Freiräume wechseln sich ab und prägen den Kontext. Das Projekt beschränkt sich demnach auf die Hälfte der Parzelle und schafft damit einen grosszügigen gemeinschaftlichen Gartenraum. Eigenständige, typologisch nicht eindeutige Grundrisse in Kombination mit einer vor- und zurück-springenden Fassade gewähren allen Wohnungeneine individuelle Qualität sowie einen privaten Aussenraum mit Seesicht.
Der Neubau wurde in konventioneller Massivbauweise mit Aussendämmung erstellt. Die Fassadenoberfläche wurde in Anlehnung an die Situation am Bahnhof aus bronze eloxiertem, gelochten Kantblech vorgehängt. Die Fensterbrillen sind hell eloxiert und geben dem Gebäude eine elegante Note. Die ändernden Reflexionen des Kantblechs helfen, die für örtliche Verhältnisse relativ lange Fassade zu gliedern und optisch zu verkürzen.
Die wesentliche Herausforderung an der Hammerstrasse bestand darin, auf einem so kleinen Grundstück und unter Berücksichtigung von Baulinien und Abstandsvorschriften ein bewohnbares Volumen zu erfinden.
Die Thematik der Siedlungsentwicklung nach innen wird gegenwärtig breit diskutiert. Der Ersatzneubau an der Hammerstrasse veranschaulicht die konkreten Herausforderungen im Zusammenhang mit der Verdichtung und der Innenentwicklung an einem kleinen Objekt im Zürcher Seefeld.
Auf der 203 m2 grossen Parzelle stand zuvor ein zweigeschossiges "Hüsli" aus dem Jahre 1840. In der W4-Zone bedeutete dies eine erhebliche Nutzungsreserve, welche mit diesem Projekt ausgeschöpft werden sollte resp. aus ökonomischen Gründen auch ausgeschöpft werden musste. Im Planungsprozess hat sich gezeigt, dass eine Aktivierung dieses Potentials unter den aktuellen Rahmenbedingungen einiges an Anstrengungen erfordert. Die wesentliche Herausforderung bestand darin, auf einem so kleinen Grundstück und unter Berücksichtigung von Baulinien und Abstandsvorschriften ein bewohnbares Volumen zu erfinden.
Dank dem Projekt gegenüber positiv gestimmten Nachbaren und Behörden ist dies schliesslich gelungen: Es konnten auf zwei Seiten Näherbaurechte ausgehandelt werden und die Feuerpolizei war bereit, die zwei Wohneinheiten als aufeinander gestapelte, zweigeschossige Einfamilienhäuser zu betrachten. Dies hat eine massgeschneiderte und sehr raumoptimierte Erschliessung ermöglicht inkl. Verbindung der insgesamt 6 Geschosse (4 Vollgeschosse, Attika und Untergeschoss) mit einem rollstuhlgängigen Lift.
Der Entwurf ist vom Ort abgeleitet. Die Ausrichtung der Parzelle nach Süden, die Topografie in Form eines bestehenden Sockels, die Strasse welche um diesen herumführt, die sehr heterogene Bebauung des Quartiers sowie der Ausblick auf den botanischen Garten haben das Gebäude in seiner spezifischen Form beeinflusst. Das Öffnungsbild der Fassade reagiert auf die verschiedenen Ein- und Ausblicke und auf den Grad der Privatheit der dahinter liegenden Räume.
Städtebauliche Eingliederung: Das Areal Winterberg liegt nur wenige Meter vom Ortszentrum entfernt und verfügt heute über unterschiedliche Qualitäten: Einmal das adressbildende Herrenhaus mit angeschlossenem Park, welches wie das Gemeindehaus oder das Pendant auf dem EWA-Areal ein prägnanter Solitär ist, umgeben von ausreichend Freiraum. Dann der eher versteckte, hintere Teil der Liegenschaft welcher heute als Parkplatz genutzt wird und von relativ heterogenen Wohnüberbauungen aus verschiedenen Epochen und in verschiedenen Massstäben umgeben ist. Die Herausforderung für eine neue Überbauung auf dem Winterberg-Areal liegt daher darin, die beiden Teile gleichwertig miteinander zu verknüpfen - dies ohne dass die Villa an Ausstrahlung verliert. Unser Projekt sieht dementsprechend ein einzelnes Volumen vor, welches durch eine sorgfältig auf die Parzelle abgestimmte Formgebung den hinteren Teil des Areals mit einer hohen Selbstverständlichkeit stukturiert und aufwertet, sich gleichzeitig aber nicht gegenüber der Villa aufdrängt.
Der Zugang zum Neubau erfolgt vorbei an Herren- und Gartenhaus und verknüpft diese so miteinander. Autofahrer werden über einen umgestalteten Gemeindehausplatz direkt von der Tellsgasse zur Einfahrt der zweigeschossigen Einstellhalle geführt, das Areal wird ansonsten autofrei. Für die Anlieferung ist einzig über die Birkenstrasse eine Zufahrt vorgesehen. Somit ist das neue Gebäude ähnlich wie das Herrenhaus von einem Park umgeben, welcher einen Puffer zwischen den öffentlichen Bereichen wie dem bestehenden Park und der Winterberggasse und dem vorgesehenen Neubau bildet.
Architektur: Damit ein einzelner Baukörper mit 41 Wohnungen im bestehenden Kontext nicht wie ein Fremdkörper wirkt, wurde das Volumen in vielfältiger Weise gegliedert. Vor- und Rücksprünge im Bereich aller drei Gebäudeflügel, welche jeweils entsprechend ihrer Lage in der Parzelle ausgerichtet wurden, sorgen rundherum für vielfältige Raumeindrücke. Der Baukörper ist weitgehend dreigeschossig und verfügt nur punktuell über viergeschossige Bereiche, womit sich das Gebäude optisch gut in die heterogene Struktur des Quartiers einfügt. Die Fassade unterstreicht die angestrebte Vielfältigkeit durch eine auf das Volumen abgestimmte Abfolge von geschlossenen und offenen Bereichen.
Die Setzung des Gebäudes im Terrain erlaubt es, das Erdgeschoss in verschiedene Bereiche zu unterteilen und damit die Beziehungen zum Aussenraum zu klären: eine grosszügige, ebenerdig liegende Eingangshalle verbindet die einzelnen Flügel des Gebäudes miteinander. Diese sind jeweils so gesetzt, dass sie der Topographie folgen können und sich die untersten Wohnungen in einem Hochparterre befinden. Der Aussenraum wird somit zum halböffentlichen Gartenraum, auf private Aussensitzplätze wird verzichtet.
Aussenraumkonzept: Die Gestaltung des Aussenraumes gliedert das Areal zusammen mit dem Gemeindehausplatz in drei Teilbereiche mit jeweils eigener Identität, die sich an ihren Berührungspunkten überschneiden und durchlässige Übergänge ermöglichen: Der gestraffte und weiterentwickelte Park um das Herrenhaus, der neu organisierte Gemeindehausplatz und der parkartige Aussenraum der neuen Überbauung, der Hortensiengarten. Alle drei Aussentypen nehmen bestehende bauliche, materielle und landschaftliche Qualitäten auf und binden so die neuen Elemente in den Kontext ein.
Städtebau
Das Gebiet Rue Industrie – Bahnhof Sion ist Teil des erweiterten Zentrums von Sion zwischen Rohne, Bahnhof und der Altstadt. Dieses Zentrum ist in Bewegung. In den nächsten 10 bis 15 Jahren soll es verkehrsberuhigt und für Einwohner, Arbeitende und Besucher attraktiver werden. Mit dem neuen Campus der Hochschulen EPFL und HES, sowie dem Projekt „Coup de Gare“ und der zunehmenden Bedeutung der südlichen Quartiere um die Rue Industrie entsteht ein neuer Schwerpunkt des öffentlichen Lebens im Süden der Stadt.
Im Gebiet Rue Industrie – Bahnhof Sion kann und muss daher “ein Stück Zentrum von Sion” entstehen. Dies spiegelt sich nicht zuletzt im Verdichtungspotenzial, das Stadt und Kanton an diesem Standort vorsehen. Der Zuzug der Hochschule bietet die Gelegenheit, diesen Anliegen und Möglichkeiten den ersten Impuls und einen passenden Ausdruck zu geben.
Das bedeutet einen speziell hohen Anspruch an die Nutzbarkeit und Qualität des öffentlichen Raums, sein Potenzial zur Adressbildung, die Belebung der bestehenden Stadträume und – für das Gebiet Rue Industrie Süd– der Zugang zum Bahnhof Sion vom Süden und den Übergang über die Fussgängerbrücke zum Zentrum von Sion. Kaum nutzbare Resträume, wie sie heute im Gebiet vielfach vorhanden sind, sind zu vermeiden. Das heisst auch, dass die Bebauung kompakt sein soll. Die vorgesehene Ausnützungsziffer soll nicht in erster Linie durch flächige Gebäude erzielt werden, sondern durch Volumen, die den Kontakt mit dem Boden und der Umgebung halten, oder anders gesagt: Das Gebiet braucht grosszügige Frei- und Aussenräume.
Das Projekt
Der öffentliche Raum im Gebiet und in seiner Umgebung ist offen und grosszügig. Die vom Individualverkehr weitgehend entlastete und für den öffentlichen Verkehr sowie Fussgänger und Velofahrer aufgewertete Rue Industrie wird nach Norden zur Rue Enterpots und den Geleisen und nach Süden zur Rue Ronquoz und zur Rohne von einem offenen, vielfältig nutzbaren und mit grossen Bäumen bespielten Freiraum durchbrochen. Dieser Freiraum erstreckt sich von von Norden nach Süden über den Campus hinaus und schafft eine Verbindung mit den umliegenden Quartieren und innerhalb des Campus. Es ensteht ein einziger, prägnanter Ort welcher der Aufenthaltsqualität und Orientierung im Gebiet und in seiner Umgebung dient. In der nördlichen Verlängerung kommt die Fussgängerüberführung zur Erschliessung der neuen Überbauung Coup de Gare von Sion zu liegen. Die Nutzungsintensität im Aussenraum wird so maximiert, parallel dazu kann sich der Langsamverkehr im gesamten Areal frei bewegen.
Ermöglicht wird dieses aussenräumliche System durch eine Konzentration der Baumasse entlang der Rue Industrie. Die Räume der EPFL und der HES der ersten Bauphase werden in einem Gebäude realisiert. Somit wird die Kooperation zwischen den Schulen optimiert und eine gemeinsame Identität angestrebt. Das Gebäude kommt ohne innenliegende Höfe aus, stattdessen wird das 180m lange Gebäude mit sorgfältig angeordneten Erschliessungskernen, die auf die verschiedenen Situationen um sie herum reagieren, gegliedert. Zwischen diesen Erschliessungkernen spannen sich im Inneren jeweils in den Geschossen mit einer niedrigeren Anforderung an die Raumhöhe parallele Träger. Diese sind wiederum mit einer standardisierten Struktur mit Stützenabständen von 6.3 Meter an der Fassade über Unterzüge verbunden. Dies erlaubt alle Räume mit ehöhter Anfordeung an die Raumhöhe wie Ateliers, Labors und Werkstätten mit ca. 450m2 grossen stützenfreien frei unterteilbaren Räumen auszuformulieren. Der Rhythmus der Eingänge und der abwechselnde Raumhöhe erlauben darüber hinaus eine vertikale und horizontale Gliederung der Fassade. Das Gebäude endet mit der Mensa auf den grosszügigen Freiraum.
Die Studie erarbeitet Inputs zu einem Raumordnungskonzept für die Metropolitanregion Zürich aus der Perspektive Winterthurs.
Ausgangslage
Zwischen 2000 und 2010 hat die Wohnbevölkerung im Metropolitanraum Zürich um rund 300‘000 Einwohner zugenommen. Dies entspricht etwa dreimal der Stadt Winterthur. Szenarien gehen von einem unverändert starken Wachstum in den kommenden Jahrzehnten aus: Bis 2030 dürften aktuellen Extrapolationen zufolge rund 600‘000 Einwohner dazukommen. Diese Dynamik bringt grosse Herausforderungen für Gesellschaft, Wirtschaft und die Raumentwicklung mit sich: Wer kann, soll und will an diesem Wachstum teilhaben resp. dieses Wachstum aufnehmen? Welche planerischen und städtebaulichen Aufgaben resultieren aus diesem Wachstum? Wie kann dieses Wachstum auf qualitativ und strukturell befriedigende Weise im bestehenden Siedlungsgebiet absorbiert werden?
Um solche Fragen zu klären, hat der Verein Metropolitanraum Zürich im Rahmen mehrerer Pilotprojekte wichtige Grundlagen für eine verbesserte Koordination der Raumentwicklung auf metropolitaner Ebene erarbeitet. Darauf aufbauend wurde durch die Konferenz der Kantonsplaner der 8 Kantone im Metropolitanraum ein Entwurf für ein metropolitanes Raumordnungskonzept erarbeitet (Metro-ROK). Weiter wurde der Fachbericht «Immigration und Bevölkerungswachstum im Metropolitanraum Zürich» in Auftrag gegeben, der statistische Grundlagen und Szenarien zur zukünftigen Bevölkerungsentwicklung im Metropolitanraum Zürich beinhaltet.
Die Stadt Winterthur nimmt diese Arbeiten zum Anlass, ihre eigene Rolle im Metropolitanraum zu überprüfen und zu konkretisieren. Die vorliegende Studie wurde von der Stadtentwicklung Winterthur in Auftrag gegeben und im Dialog mit dem Amt für Städtebau begleitet. Die Bearbeitung erfolgte durch die Büros SLIK Architekten und Güller Güller architecture urbanism.
Zielsetzung und Vorgehen
Ziel der vorliegenden Studie war, die Wachstumsszenarien für den Metropolitanraum und die Überlegungen aus dem Entwurf Metro-ROK auf den Raum Winterthur zu beziehen, spezifische planerische und städtebauliche Herausforderungen im Zusammenhang mit der erwarteten Bevölkerungs- und Beschäftigtenentwicklung zu benennen und eine konkretisierte Vorstellung der Auswirkung des weiteren Wachstums auf Winterthur und dessen Einbettung im Metropolitanraum Zürich zu gewinnen.
Der erste Teil der Studie befasst sich mit Analyse, Auswertung und Ergänzung vorliegender Szenarien zur zukünftigen Bevölkerungs- und Beschäftigtenentwicklung im Metropolitanraum und in der Region Winterthur (top-down). Gemeindescharfe Szenarien bilden das Mengengerüst für die Überlegungen im zweiten Teil. Hier werden die Spielräume für das Bevölkerungs- und Beschäftigtenwachstum basierend auf der Bauzonenstatistik für den Raum Winterthur ermittelt (bottom-up). Es wird aufgezeigt, welche Spielräume für die zukünftige Entwicklung in der Region Winterthur vorhanden sind. Hier wird mit unterschiedlichen Annahmen bezüglich der (Nach-)Verdichtung gearbeitet, um die Elastizitäten und Kapazitäten im bestehenden Siedlungsgebiet in Bezug auf die Wachstumsszenarien iterativ einzugrenzen. Schliesslich werden die Erkenntnisse ausgewertet und den politischen Entwicklungszielen und -strategien Winterthurs gegenübergestellt sowie erste Überlegungen zu einer Positionierung der Region im Metropolitanraum angestellt.
Ausgangslage und Strategie
Das unmittelbare Umfeld der Siedlung Schlüsselacker in Umiken befindet sich aktuell im Umbruch und ist daher durch eine sehr heterogene Bebauung geprägt. Die attraktive Lage am Südhang des Aaretals hat zu einer regen und anhaltenden Wohnbautätigkeit im Quartier geführt. Zwischen der Brugger Vorstadt und dem Umiker Oberdorf sind in den letzten Jahren Wohnbauten in unterschiedlichen Segmenten und Positionierungen realisiert worden. Die Überbauung Schlüsselacker liegt im unteren Bereich dieses Südhangs an der Baslerstrasse und der Bahnlinie. Trotz dieser stark exponierten und schwierigen Lage funktioniert die bestehende Anlage aufgrund ihrer pragmatischen introvertierten Organisation als durchgrünte familienfreundliche Wohnsiedlung im unteren Preissegment.
Aussenraum und Architektur
Der introvertierte Aussenraum der Siedlung Schlüsselacker mit seinen Vorgärten, Sitz- und Spielplätzen soll zukünftig erweitert und ergänzt werden. Städtebaulich und freiräumlich sucht das Projekt demnach die Kontinuität zur bestehenden Anlage. Die drei typologisch verwandten Gebäude orientieren sich in Dimensionierung und Orientierung an dem bestehenden Doppelhaus 4.1/4.2 und werden vom bereits bestehenden internen Weg erschlossen. Dadurch lässt sich der Zusammenhalt mit der bestehenden Siedlung stärken und es sind keine weiteren Zugangswege erforderlich. Die 3 erforderlichen Besucherparkplätze befinden sich im Norden des Perimeters an der Schlüsselstrasse und markieren den neuen Arealzugang.
Zwischen den drei Neubauten fällt das Terrain in Form einer Böschung in den Garten ab. Der bestehende Lärmschutzwall bleibt erhalten und ermöglicht eine vom Strassenlärm weitgehend abgeschirmte Wiesen- oder Rasenfläche, welche der ganzen Siedlung zugeordnet ist. Die drei Häuser sind als effiziente und kompakte Dreispänner mit 2 resp. 3 Vollgeschossen und Attika konzipiert (siehe baurechtliche Rahmenbedingungen). Somit wird ein Gartengeschoss mit attraktiven Sitzplätzen realisierbar, welches über einen direkten Zugang in den Garten verfügt. Im hinteren Bereich des Gartengeschosses sind die Nebenräume (Mieterkeller, Technik-, Wasch- und Trockenräume) angeordnet. Die Positionierung der Neubauten erlaubt zudem eine direkte und hindernisfreie Anbindung aller drei Gebäude an die bestehende Tiefgarage.
Wohnungstypen und Wohnungsmix
Alle Neubauten verfügen direkt beim Eingang über einen Velo- und Kinderwagenraum. Von hier gelangt man in die drei innenliegenden Treppenhäuser, welche die behindertengerechte Erschliessung von drei Wohnungen pro Geschoss erlauben. Durch die kompakten Gebäudevolumina verfügen alle Wohnungstypen über mindestens zwei Fassadenexpositionen, womit eine attraktive und vielfältige Grundrissorientierung und –organisation ermöglicht wird. Im Gartengeschoss sind jeweils 1 (Haus A) resp. 2 (Häuser B/C) Wohnungen vorgesehen, in den Erd- und Obergeschossen sind jeweils 3 und in den Attikageschossen jeweils 2 Wohnungen vorgesehen.
Alle Wohnungstypen sind ohne Erschliessungskorridore organisiert, was grosse und fliessende Wohnräume mit offenen Küchen ermöglicht, welche flexibel genutzt und möbliert werden können. Alle Zimmer sind in sich rechtwinklig und können auch bei kleineren Grundflächen gut möbliert werden. Einzelne Zimmer lassen sich über Schiebetüren zum Wohnraum öffnen. Die Nasszellen resp. Bäder sind den jeweiligen Wohnungstypen entsprechend dimensioniert und ausgestattet. Alle Wohnungen verfügen zudem über grosszügige halbeingezogene Balkone, welche im Sommer als offene Aussenzimmer genutzt werden können. Eine Ausnahme bilden die Attikageschosse, welche anstatt der Balkone über grosse Dachterrassen verfügen.
Konstruktion und Materialisierung
Das Projekt sucht eine inhaltliche und atmosphärische Verwandtschaft zum Bestand, strebt aber einen eigenständigen architektonischen Ausdruck an. Die Fassaden sind als hinterlüftete, vertikale Welleternitfassaden vorgesehen (z.B. Typ ONDAPRESS-36). Farblich orientieren sich die Bauten an der bestehenden Siedlung und reagiert in einem hellen Grauton (z.B. Planea Grau 216 R). Durch die leicht gelbliche Prägung dieses Grautons wird die Fassade unempfindlicher gegenüber Verunreinigung durch Flugstaub. Die hinterlüftete Konstruktion ist zudem weit weniger allfällig bezüglich Schimmelpilzbefall oder Algenbildung, was die Lebensdauer an dieser Lage beträchtlich erhöhen dürfte. Diese Konstruktionsweise ermöglicht eine einfache Integration der Storenkästen. Im Bereich der Loggias mit einer Tiefe von 2.5 m wird auf die Storen ganz verzichtet.
Die Tragstruktur ist als konventioneller Massivbau in Ortbeton und Backstein mit vertikaler Lastabtragung vorgesehen. Die Materialisierung des Innenausbaus ist zweckmässig und einfach: Parkett- oder Gussböden, Wände mit einfachem Glattstrich, Decken gestrichen oder in Sichtbeton. Bei der Konstruktion sollte auf eine weitgehende Systemtrennung geachtet werden, damit die unterschiedlichen Bauteile entsprechend ihrer Lebensdauer einfach ersetzt werden können. Es wird davon ausgegangen, dass die Gebäude flach fundiert werden können.
Ausgangslage
Das Grünhof-Areal liegt inmitten des sehr lebendigen Kreis 4, umgeben von einer Vielzahl von attraktiven Läden, Restaurants und Bars. Die Badenerstrasse ist neben der Langstrasse eine der Hauptachsen des Quartiers und entsprechend belebt und befahren. Die zentrale Lage der zu bearbeitenden Parzelle bringt somit eine nicht unerhebliche Lärmbelastung mit sich, doch dank des Grünhofes verfügt das Gebäude über eine ruhige, sonnige Rückseite. Daher ist es möglich hier helle und ruhige Wohnungen zu erstellen.
Herausforderung
Die Badenerstrasse 131 verfügt über zwei sehr unterschiedliche Nachbargebäude, auf der einen Seite ein typisches Wohnhaus wie man es vor rund 100 Jahren erstellt hat, auf der anderen Seite ein modernes, überhohes Bürogebäude. Letzteres springt von der Baulinie zurück und führt zu der Situation, dass man die zulässige Gebäudetiefe von 20m vollkommen ausschöpfen muss, um sowohl die Strassenfassade wie auch die Hoffassade zu komplettieren. Da sämtliche Wohn- und Schlafzimmer über den Hof belüftet werden müssen steht man nun vor der Herausforderung, die hohe Gebäudetiefe entsprechend auszunutzen.
Projekt
Das vorgeschlagene Volumen orientiert sich am Bestand und vermittelt zwischen den beiden gegensätzlichen Nachbarvolumen. Im Osten wird die Gebäudetiefe des Altbaus übernommen und bis zur Abstandslinie bezüglich der Nachbarparzelle fortgeführt. Von hier springt die Fassade nach Süden und orientiert sich am westlichen Bürogebäude, es entsteht eine zusätzliche Ostfassade welche hilft, möglichst viele Raumeinheiten über den Hof zu belüften. Die Gestaltung des Attikageschosses nutzt die baurechtlichen Möglichkeiten aus, um die vermittelnden Eigenschaften des Volumens zu unterstreichen. Die Anordnung der Öffnungen in der Fassade verfolgt das Ziel, dass sich das Gebäude mit einem Öffnungsanteil von knapp 40% gut in die von Lochfassaden dominierte Umgebung einfügt.
Erschlossen wird das Gebäude über die Badenerstrasse, der Zugang liegt in der Gebäudemitte und erlaubt die Anordnung von zwei Läden bzw. Wohnateliers im Erdgeschoss. Es besteht ein zweiter Zugang zum Hof mit direktem Anschluss an einen Velo-Raum. Der Hofbereich wird durch eine Plattform aus Holz optisch aufgewertet und bietet sich zum gemeinschaftlichen Aufenthalt für alle Hausbewohner an.
Die weiteren Geschossflächen werden im vorliegenden Entwurf von einem mittig liegenden, grosszügig ausgelegten Kern erschlossen welcher es erlaubt, diese sowohl für zwei als auch für drei Wohneinheiten zu nutzen. Im letzteren Fall entsteht eine Wohnung welche nach Süden und Osten ausgerichtet ist, alle weiteren Wohnungen sind zweiseitig (Nord-Süd) orientiert. Jede Wohnung verfügt über einen zum Hof hin ausgerichteten privaten Aussenraum und wird über diesen belüftet. Somit werden die Lärmschutz-Vorschriften eingehalten, die sehr tiefen Wohnungen im Westen benötigen für den nach Nord-Westen orientierten Wohnraum eine Ausnahmebewilligung nach Art. 31 Abs. 2 LSV, die Voraussetzungen dafür werden ausnahmslos erfüllt. Das Attikageschoss nutzt auf beiden Seiten die Möglichkeiten für Dachaufbauten aus, um vollständig an die Nachbarvolumen anzuschliessen. So entstehen zwei grosszügige Dachterrassen welche ausschliesslich von je einer Wohnung eingesehen werden können, obwohl beide Wohnungen zweiseitig orientiert sind.
Konstruktiv schlagen wir einen Massivbau vor, einerseits vom Kontext ausgehend, andererseits um die Lärmproblematik gut lösen zu können. Die Lasten werden im Inneren über den Kern sowie zwei längs durch das Gebäude verlaufende Wandscheiben abgetragen. Zusätzlich stehen die beiden Brandwände zu den Nachbargebäuden zur Verfügung. Die Fassade besteht aus selbsttragenden, vorfabrizierten Betonelementen. Diese werden als Doppelwände mit Kerndämmung ausgeführt und erlauben es, die aktuellen Energievorschriften einzuhalten. Durch das Schleifen der äusseren Betonschicht bekommt das Gebäude eine das Umgebungslicht reflektierende, lebendige Fassade und wird so ein weiterer Baustein im Fassadenbild der lebendigen, abwechslungsreichen Badenerstrasse.
Ausgangslage/Strategie
Während die landschaftliche Qualität des Areal Rai als Wohnstandort unbestritten hoch ist, entsteht durch die anspruchsvolle Topografie, die Erschliessungssituation sowie die geologische Instabilität des Hangs eine anspruchsvolle Ausgangslage für die Projektierung. Das Projekt reagiert auf diese Rahmenbedingungen mit folgenden Massnahmen:
- Die Bebauung wird sowohl im oberen (Bereich A) als auch im unteren (Bereiche B/C) auf diejenigen Stellen beschränkt, welche topografisch besonders flach sind und damit der Aufwand für die Erdarbeiten möglichst gering bleibt.
- Die Verkehrserschliessung erfolgt direkt ab der Föhren- resp. der Raistrasse, damit keine zusätzlichen Strassen und aufwändigen Umgebungsarbeiten anfallen.
- Die Bebauung geht nur so tief in den Untergrund, dass die Drainage unter den Bauten an allen Stellen uneingeschränkt gem. Hangsicherungs- und Entwässerungskonzept gewährleistet bleibt.
Durch diese Massnahmen bleibt der Hang trotz der relativ dichten Bebauung in seinen freiräumlichen Qualitäten erhalten und ist als landschaftlich geprägte verkehrsfreie Begegnungszone sowohl zwischen als auch oberhalb der Gebäudezeilen nutzbar.
Typologisch sind die beiden Gebäudezeilen verwandt. Die untersten Geschosse enthalten Parkierung, Technik und Kellerräume und bilden den Sockel für die Hochbauten. Diese Bauten sind als aufgelockerte Punkthäuser mit 4-7 Obergeschossen vorgesehen und erlauben einerseits einen allseitigen Ausblick in die attraktive Umgebung und andererseits einen weitgehend freien Durchblick aus der Umgebung. Durch die Positionierung der oberen Gebäudezeile in der Mitte des Baugebietes bleibt zudem der Ausblick ab der Bergstrasse vollumfänglich erhalten.
Eigentumswohnungen
Die obere Gebäudezeile (Bereich A) tritt als Sockel mit Aufbauten in Erscheinung. Die Vorderkante des Sockels erinnert an eine Stützmauer, welche eine klare Grenze zwischen der Landschaft und der Baute bildet. Auf dem Sockel resp. zwischen den Häusern befinden sich sowohl kollektive als auch individuelle Freiräume (Vorgärten). Der Zugang zu den Gebäuden erfolgt wahlweise direkt aus der Tiefgarage oder über einen in die Sockelkante integrierten Fussweg mit Pergola. Die Gebäude verfügen über grosszügige, zum Tal orientierte Loggiabalkone und entsprechen in punkto Materialität und Ausführungsqualität einem gehobenen Standard (z.B. Elementfassade in Beton).
Mietwohnungen
Die untere Gebäudezeile (Bereich B) tritt als begrünter und zur Strasse geböschter zweigeschossiger Sockel mit Aufbauten in Erscheinung. Die Gebäude sind entweder aus der Tiefgarage oder direkt ab der Strasse erschlossen und orientieren sich von dieser weg nach Westen. In diesem Bereich sorgt ein durchgehender kollektiver Freiraum am Hangfuss für entsprechende Aufenthaltsqualität. Die Gebäude verfügen über eingezogene Balkone und sind als Mietshäuser in einem tieferen Standard ausgeführt (z.B. Putzfassade). Als volumetrische Fortsetzung der Mietshäuser in nördlicher Richtung und als Übergang zu der angrenzenden Bebauung folgen schliesslich 8 Reiheneinfamilienhäuser (Bereich C). Die diesen Einheiten zugeordneten Parkplätze befinden sich ebenfalls in der angrenzenden Tiefgarage.
Das ehemalige Spinnereigebäude auf dem Kunz-Areal in Windisch erstreckt sich über 90x45m und wurde zur Hälfte bereits in ein Rekrutierungszentrum der Armee umgenutzt. Die durchlaufende Struktur mit ihren 20m überspannenden Unterzügen ist dadurch gesetzt und kann im verbleibenden Gebäudeteil nicht mehr modifiziert werden.
Die besondere Herausforderung bei diesem Projekt war es mit möglichst wenig Eingriffen eine Industriehalle mit vorgegebener Struktur in ein Parkhaus mit Büroaufbau umzuwandeln. Die vertikale Erschliessung wurde in die Fassadenebene gelegt um einerseits den Unterzügen auszuweichen und andererseits die Fläche für die Parkierung zu maximieren: die Kombination von Kaskadentreppe und Lift, beide aus Feuerschutzgründen in Beton gehüllt, verleiht dem Gebäude sein prägnantes Äusseres. Ansonsten wird alles entfernt, was für den weiteren Betrieb des Heinrich nicht unbedingt notwendig ist, um die Fundamente zu entlasten. So kann der Büroaufbau in Holzbauweise – recyclete Minergie-Büromodule der Firma Erne – einfach auf das Dach gestellt und mit den Infrastrukturen verbunden werden.
Die Studie zeigt innerhalb des technischen Perimeters des Herzstück Regio S-Bahn Basel einen Katalog möglicher Zu- und Ausgänge der unterirdischen Stationen in der Innenstadt auf.
Das Herzstück Regio S-Bahn Basel wird 2 Stationen in der Basler Innenstadt haben, je eine in Gross- und in Kleinbasel. Die Zu- und Ausgänge dieser Stationen an der Oberfläche sind so anzulegen, dass sie die angestrebte Entwicklung der Innenstadt sowie Basels als Ganzem unterstützen und gleichzeitig stadträumlich gut integriert werden können. Die wichtigsten Erkenntnisse dieser Studie sind:
Machbarkeit von Stationen in der Innenstadt: Mit dieser Arbeit liegt ein Katalog möglicher Zu- und Ausgänge zu den Stationen des Herzstücks Regio S-Bahn Basel vor. Damit ist zusammen mit den bisherigen Studien gezeigt, dass Stationen in der Innenstadt technisch möglich und städtebaulich verträglich sind. Die dargestellten Beispiele stellen geeignete und sinnvolle Lösungen dar, sie sind aber nicht abschliessend und auch nicht komplett: weitere Standorte von Zu- und Ausgängen sind möglich.
Suchgebiete und sinnvolle Adressen: In der Basler Innenstadt und vor allem auch in Grossbasel besteht relativ viel Spielraum zur Realisierung und Anordnung von Zu- und Ausgängen bezüglich der primären Suchkriterien für geeignete Standorte (Arbeitsplatzdichte, Umsteigebeziehungen, publikumsintensive Einrichtungen, identitätstragende Adressen). In Grossbasel spannt sich das Suchgebiet flächig zwischen der Achse Schifflände-Barfüsserplatz und dem Petersgraben auf, während es sich in Kleinbasel auf die Achse Claraplatz-Messe mit einer Verlängerung bis zum Musical-Theater konzentriert.
... speziell für Grossbasel: Aufgrund der engen Platzverhältnisse im gesamten Suchgebiet in Grossbasel, und der zu erwartenden hohen Personenströme von und zur S-Bahn-Station, wird es vermutlich notwendig sein, mit relativ zahlreichen Zu- und Ausgängen zu operieren im Sinn einer Strategie „auf alle Seiten auszuschwärmen“. Multiple kleine Zu- und Ausgänge sind nach Möglichkeit in einem Verteilgeschoss auf der Ebene -1 zusammenzufassen. Speziell zu beachten ist dabei in der Achse Schifflände-Barfüsserplatz die Lage des eingedolten Birsig. Zudem gilt es, durch die Topographie bedingte lange unterirdische Abwicklungen zu vermeiden. Die Wege an der Oberfläche mit den öffentlichen und kommerziellen Angeboten sind deutlich attraktiver.
... speziell für Kleinbasel: Die Wohnbereiche Kleinbasels sollen a priori eher nicht mit zusätzlichen Personenströmen von Zu- und Ausgängen beeinträchtigt werden. Standorte sind daher eher nahe der Achse Claraplatz-Messe zu suchen. Aus heutiger Sicht scheint es zentral, die bestehenden Angebote an der Oberfläche zu stärken und zu fördern. Es ist jedoch zu prüfen, ob die S-Bahn-Station in Kleinbasel nicht zusätzliche Entwicklungs- und Transformationspotenziale freisetzen kann und soll.
Typen von Zu- und Ausgängen: Verschiedene Typen von Zu- und Ausgängen sind möglich, sowohl was ihre Grösse (Anzahl Treppen- bzw. Liftanlagen) angeht, wie auch ihre Lage in öffentlichen Platz- und Strassensituationen oder in bestehenden öffentlichen oder privaten Gebäuden.
Städtebauliche Integration: Die Ergebnisse der Studie zeigen, dass eine qualitativ hochwertige städtebauliche Integration der Zu- und Ausgänge mit relativ kleinen Eingriffen möglich ist. Aufgrund der engen Platzverhältnisse im öffentlichen Raum ist dabei verschiedentlich eine Integration der Zu- und Ausgänge in bestehende öffentliche oder private Gebäude notwendig. Diesbezüglich gilt es, denkmalpflegerische Belange noch verstärkt zu betrachten. Der Einbezug privater Objekte zur Anordnung der Zu- und Ausgänge der S-Bahn-Stationen birgt dabei ein gewisses Risiko, da die öffentliche Hand nur bedingt Einfluss auf die Verfügbarkeit der betroffenen Liegenschaften hat.
Gestaltungslogik der Zu- und Ausgänge: Die Gestaltung der Zu- und Ausgänge soll eher zurückhaltend (minimalinvasiv) sein, in Grossbasel wie in Kleinbasel. Die Sichtbarkeit und Erkennbarkeit sind in erster Linie über eine sinnvolle Position der Zu- und Ausgänge sowie über Signaletik und Farbgebung zu erreichen. Die Gestaltung soll mit dem Gestaltungskonzept Innenstadt koordiniert werden. Das Konzept befindet sich derzeit in Erarbeitung. Die Platzverhältnisse beidseits des Rheins erlauben keine architektonischen Statements.
Zusatznutzungen im UG: In den mehrheitlich engen Platzverhältnissen, sowohl in Grossbasel wie auch in etwas geringerem Mass in Kleinbasel, wird empfohlen ein unterirdisches Verteilgeschoss mit mehreren kleinen Zu- und Ausgängen zur Oberfläche anzuordnen anstelle eines grossen Hauptzugangs. In Zusammenhang mit der Anlage solcher Verteilgeschosse ist die Realisierung von Angeboten im UG für die S-Bahn-Passagiere, aber auch für BVB-Passagiere und allgemein für Stadtbesucher – Billetschalter, Kiosk, WC, Veloabstellplätze – vorzusehen. Dies erlaubt es, insbesondere bei stark frequentierten Plätzen die Oberfläche zu „entrümpeln“. Weitere zusätzliche Nutzungen im UG – Shopping, Lobbies angrenzender Gebäude, Erweiterung der Messe, Museen etc. – sind frühzeitig zu prüfen, wobei die Wirtschaftlichkeit unterirdischer Anlagen sowie Rahmenbedingungen wie Feuerschutz speziell zu beachten sind.
Beitrag zur Bestimmung der Position der Stationen: Die Zu- und Ausgänge sind möglichst nahe bei den Stationen anzuordnen, um lange unterirdische Anlaufwege zu vermeiden. Die S-Bahn-Benutzer sollen lieber an der Oberfläche möglichst nahe zu den Stationen gehen. Wenn man also Universität und Universitätsspital direkt mit einem eigenen Zu- und Ausgang an die Station Grossbasel anschliessen will, sollte die Station nach Möglichkeit mittig zwischen Petersgraben und der Achse Schifflände-Barfüsserplatz angelegt werden. Sollen die Personenströme der S-Bahn-Passagiere jedoch durch die Altstadt geführt werden, sollte die Station möglichst direkt unter der Achse Schifflände-Barfüsserplatz liegen.
Optimierung im Zusammenspiel mit weiteren Aspekten: Sobald die genaue Stationslage bekannt ist, sind umgekehrt die Möglichkeit und Notwendigkeit einer unterirdischen Zusammenfassung der Zu- und Ausgänge in einem Verteilgeschoss, die Kapazitäten zur Abwicklung der Personenströme und die Minimierung der unterirdischen Abwicklungen zu prüfen und zu optimieren. Dies ist mit allen weiteren Optimierungsaspekten zu den S-Bahn-Stationen und zum Herzstück zu koordinieren.
Die grosse Herausforderung bei dieser Entwurfsaufgabe bestand darin, für die Münchner Volkshochschule in den ehemaligen Gebäuden der Trambetriebe einen eigenständigen, visiblen Standort zu gestalten, ohne dabei den schützenswerten Bestand in seinem städtebaulichen Selbstverständnis zu degradieren.
Der Entwurf steht für den Ansatz, den historischen Bestand durch zwei städtebaulich präzise gesetzte Eingriffe in ein neues Gefüge einzugliedern, in welchem sich alle Elemente unter Wahrung ihrer Eigenständigkeit gegenseitig befruchten. Zusätzlich wird der grosszügige Innenhof über eine neu geschaffene Verbindung zur Schlossstrasse besser mit dem Quartier vernetzt um den Campus als öffentlichen Ort im Quartier zu integrieren.
Die Eingriffe selbst bestehen aus zwei neuen Volumen: einem liegenden Körper, der sich an der Flucht der ehemaligen Wagenhalle orientiert und mit dem historischen Kopfbau an der Ecke Einsteinstrasse/Schlossstrasse eine Einheit bildet; sowie einem stehenden Körper, welcher sich durch eine leichte Verschiebung zum Hof hin vom Bestand löst und die Höhe der benachbarten Volumen aufnimmt. So entstehen zwei Flügel, welche die verschiedenen Angebote der Volkshochschule logisch gliedern: zur Schlossstrasse hin befinden sich die Angebote zu Gesundheit/Bewegung und Migration sowie die Administration. An der Einsteinstrasse befinden sich sämtliche öffentlichen Nutzungen inklusive eines Foyers mit Cafeteria im Erdgeschoss, den Schulungsräumen in den Obergeschossen sowie des Veranstaltungssaales im vierten Obergeschoss, welcher eine Aussicht über den Campus und das Quartier bietet und gleichzeitig als Wahrzeichen der Münchner Volkshochschule in Erscheinung tritt.
Auf dem Hambergerareal soll ein Tourismusresort hoher architektonischer Qualität entstehen und gleichzeitig die landschaftlichen Qualitäten des Ortes gesichert werden. Das Plateau im oberen Bereich eignet sich räumlich, topographisch und bezüglich Erschliessung ideal für eine Bebauung, welcher an dieser Stelle erste Priorität beigemessen wird. Am See werden zwei zusätzliche Wohngebäude und sonst weitgehend öffentliche Nutzungen (Bad, Liegewiese, Spielplatz, Restaurant) realisiert und durch einen durchgehenden Uferweg erschlossen - die Priorität liegt bei der Landschaft. Im Wald findet nur eine geringe Zahl exklusiver Apartments Platz, welche sich vom übrigen Resort abgrenzen.
Eine in die Jahre gekommene Wohnsiedlung in Utrecht gebaut von G. Rietveld soll dem heutigen Wohnstandard angepasst werden. Ein vorfabrizierter Erweiterungsprototyp für jede Wohnung ermöglicht grosszügige Wohnungsgrundrisse mit neuen Nasszellen. Eine Passarelle im Freien, die alle Wohnungen mit einem Liftturm verbindet gewährleistet die Erschliessung für alle Menschen und schafft zusätzlich neuen sozialen Aufenthaltsraum Raum.
Für die Jugend- und Kinderorchester von Venezuela sollte im Zentrum von Caracas, angrenzend an den Park „Los Caobos“, eine umfangreiche Erweiterung des bestehenden Schulzentrums gestaltet werden. Neben drei Konzertsälen für bis zu 4‘000 Besucher beinhaltet diese auch Übungsräume für ca. 2‘000 Kinder und Jugendliche sowie zahlreiche Zusatznutzungen.
Um diese komplexe Aufgabe auf dem relativ kleinen Grundstück erfüllen zu können wurde eine Lösung erarbeitet, welche das Erdgeschoss für die beiden grossen Konzertsäle freispielt. Nach aussen hin offen verbindet dieses den Strassenraum mit dem Park und bildet eine gemeinsame Aufenthaltszone für Schüler und Besucher. Ein verspieltes Rampensystem führt hinauf in den konstruktiv als Brücke über die Säle konzipierten Schultrakt, in welchem die verschiedenen Übungsräume untergebracht sind. Aufgrund des lokalen Klimas können sämtliche Erschliessungsbereiche offen gestaltet werden, sie bilden gleichzeitig einen Puffer für die akustisch und klimatisch heiklen Übungs- und Konzertsäle.
Der Projektentwurf orientiert sich an den Prinzipien der bestehenden Bauten in der Umgebung, die mit ihrer Direktheit bis heute sowohl funktional als auch ästhetisch faszinieren. Die Bauten der Schachtanlagen und der Kokerei verdeutlichen die Kraft einer pragmatischen Umsetzung funktionaler Anforderungen vereint mit einer entsprechenden baulichen Direktheit, Materialität und Komposition. In diesem Sinne versteht sich das Projekt als Versuch, die räumlichen Anforderungen für den Fachbereich Gestaltung möglichst direkt und schnörkellos umzusetzen und architektonisch ebenso zeitgemässen wie direkt auszuformulieren.
Die Interpretation des Raumprogramms führte zur Idee, alle Schulungsräume sowie sämtliche Büros in einem 125m langen Riegel unterzubringen. Dieser dreigeschossige flexible Schulbau wird möglichst nahe an die östliche Perimetergrenze resp. die Nachbargebäude herangerückt, damit das restliche Grundstück für die Ateliers und Werkstätten nutzbar bleibt.
Die insgesamt 5 Trakte beinhalten die Arbeitsräume für die Studierenden und sind bis auf den Werkstattflügel im Norden eingeschossig ausgelegt und werden über Sheddächer mit Zenitallicht versorgt. Schnittstelle zwischen Schulgebäude und den Arbeitsbereichen bildet ein öffentliches und über die gesamte Gebäudelänge reichendes Erdgeschoss, welches sowohl als Lobby als auch als Ausstellungs- und Aufenthaltsbereich genutzt werden kann. An der südwestlichen Schmalseite des Gebäudes befindet sich die Cafeteria, welche sich über einen Vorplatz zur Gleisharfe und zur Kokerei orientiert. Der auskragende Gebäudeteil wird damit zum Vordach für den Aussenbereich der Cafeteria. Das Erdgeschoss wird durch drei Treppenhäuser gegliedert, welche in gleichen Abständen zueinander stehen. Dazwischen liegen offene, über drei Geschosse reichende Atrien, welche die Schulgeschosse im zweiten und dritten Obergeschoss räumlich mit dem Erdgeschoss zusammenbinden und zusätzlich Licht in die Lobby bringen. Aus den Erschliessungszonen der Schulgeschosse öffnet sich zwischen den Kernen ein Blick über die Dachlandschaft der Ateliers und Werkstätten nach Westen. Im dritten Obergeschoss befinden sich die Büros und das Rektorat. Es entsteht somit eine doppelte Gliederung des Raumprogramms: Die horizontale Organisation gruppiert Räume mit ähnlichen Nutzungen auf den gleichen Geschossen, die vertikale bindet die Räume der drei Fachbereiche mit jeweils einem entsprechenden Erschliessungskern funktional zusammen.
Das bestehende Diesellokal wird künftig als flexibel nutzbare Veranstaltungshalle dem gesamten Quartier zur Verfügung stehen. Das Gebäude wird mit minimalem Aufwand für diese Nutzung in Stand gesetzt. Tragstruktur und Dach werden im aktuellen Zustand belassen, Fassadenputz und Fenster werden ausgewechselt. Der Innenraum wird freigeräumt und die Maschinen und Installationen demontiert. Eine Heizung ist nicht vorgesehen womit eine aufwändige energetische Sanierung der Gebäudehülle entfällt. Elektro- und Sanitärinstallationen werden nutzungsgerecht in Stand gesetzt um minimalen Anforderungen an den Betrieb zu genügen.
Daneben wird ein flexibler Neubau für stilles Gewerbe und Dienstleistungsnutzungen mit einem Erd- und drei Obergeschossen erstellt. Gebäudeabmessungen, Struktur und Erschliessung sind auf eine flexible und funktionale Unterteilbarkeit der Mietflächen ausgelegt, das Angebot beinhaltet Einheiten zwischen 20 und ca. 450 m2. Im Erdgeschoss sind alternativ zu den Gewerbe- und Büronutzungen gemeinschaftlich nutzbare Flächen vorgesehen. Es wird zwischen einem Grund- und einem Standardausbau unterschieden, womit im Innenausbau unterschiedliche Mieterwünsche und Ausbaustandards berücksichtigt werden können. Das Gebäude wird teilweise unterkellert, im Untergeschoss sind neben den Technikflächen (Übergabestationen Fernwärme und Elektroinstallationen, Brauchwarmwasseraufbereitung, Lüftung) vermietbare Kellerräume vorgesehen. Die Tragstruktur besteht aus einem Skelettbau in Massivbauweise, der dezentral an der Nordfassade angeordnete Kern enthält nebst der Erschliessung alle Nasszellen und Nebenräume, welche somit unabhängig von der zukünftigen Vermietung genutzt werden können.
Das Projekt für das Kulturzentrum „Les Arts Gstaad“ ist durch die ebenso zurückhaltende wie prägnante Gestaltung der weithin sichtbaren Baukörper geprägt, die auf einer erhöhten Plattform abgesetzt erscheinen. Damit wird es der Erfordernis von Sichtbarkeit und Ausstrahlung des geplanten Kulturzentrums gerecht, ohne die Kleinteiligkeit der Umgebung zu stören. Den beiden Hauptfunktionen von Konzertsaal und Ausstellungsräumen wird je ein verschieden gestalteter, stark plastisch wirkender Körper zugewiesen.
Das Problem der Lage „hinter den Geleisen“ und andererseits des Risikos eines aus dem tiefgelegenen Terrain herausführenden, allzu wuchtig sich entwickelnden Baukörpers wird durch eine breite Terrasse gelöst, die über das gesamte Grundstück gelegt wurde und auf der dann wie grosse Skulpturen aufgesetzt die Baukörper erscheinen. Diese Terrasse dient gleichzeitig als erhöhte Verkehrs- und Flanierebene; im Innern verbirgt sie den Grossteil des Raumangebotes. Der Zugang zu Konzertsaal und zu den Ausstellungsräumen erfolgt von der Terrasse ausgehend über ein grosszügig gestaltetes Foyer. Von hier aus erreicht man über eine dem Gefälle des Hanges folgende Treppe die tiefer liegenden Ausstellungsräume und den Konzertsaal, der als Rechteckraum („Schuhschachtel“) mit einem umlaufenden Balkon geplant wurde, was sehr gute akustische Grundbedingungen erfüllt.
Das Speich-Areal in Wipkingen befindet sich an einer städtebaulich sehr exponierten Lage, die in den letzten Jahrzehnten vor allem von Verkehrs-Infrastrukturen geprägt wurde. Die neue Überbauung wird eine hohe stadträumliche Präsenz haben und sollte den Wipkingerplatz nach Südosten hin neu definieren, was aber nicht auf Kosten der letzten Zeugen des alten Ortskernes von Wipkingen, der Überbauung an der Röschibachstrasse, geschehen darf.
Die projektierte Baulinie entlang der Hönggerstrasse kann diesen Anspruch mit ihrer Ausrundung hin zur Röschibachstrasse nicht erfüllen, da die dortige Häuserzeile kein prägnantes, abschliessendes Volumen darstellt sondern durch ihre tiefere Lage eher wie ein untergeordnetes Hofgebäude erscheinen würde, käme man ihr mit einem viergeschossigen Neubau zu nahe. Wir schlagen daher vor, am südwestlichen Rand des Areals von der Baulinie zurückzuweichen und die so freigewordene Fläche der Bautiefe zuzuschlagen, um einen ausreichend grossen Zwischenraum zwischen der Überbauung des Speich-Areals und der Häuserzeile an der Röschibachstrasse zu generieren. Gleichzeitig erlaubt dies den Neubau mit einem prägnanten Kopfvolumen abzuschliessen, welches sich auf den Wipkingerplatz bezieht und diesem zu einem südöstlichen Abschluss verhilft.
Während dieses Kopfvolumen, das Dienstleistungsgebäude, mit einer einheitlichen, transparenten und hochwertigen Glasfassade in Erscheinung tritt sind die Fassaden der Wohngebäude stark ausdifferenziert. Die auf die Hönggerstrasse ausgerichtete, geschlossene Nordfassade verzichtet auf Vorsprünge und verfügt über präzise, den Grundrissen entsprechend gesetzte Öffnungen. Sie fügt sich in den Strassenraum ein und betont über Dachaufbauten die jeweiligen Treppenhäuser. Die Südfassade wiederum wird von den hohen Schallimmissionen geprägt, auf welche Sie durch eine Komposition von Vor- und Rücksprüngen reagiert. Durch die so entstehenden Nischen können die Wohnungen natürlich belüftet werden, gleichzeitig verleihen sie dem Gebäude zum Limmatraum hin ein prägnantes Äusseres. Die Fassade ist grossflächig verglast um einerseits die Wohnungen mit der Aussicht zur Limmat aufzuwerten und andererseits den Heizbedarf im Winter durch solare Wärmegewinne möglichst zu reduzieren.
Der heute stark zergliederte Aussenraum des Speich-Areals wird durch eine einzelne Massnahme in zwei gleichwertige Bereiche aufgeteilt. Zwischen der neuen Überbauung und dem bestehenden Flusshaus wird mittels eines weiteren Volumens ein leicht unterhalb der Strasse liegender Hofraum ausgebildet, welcher über die Zufahrt im Osten des Areals betreten wird. Hier befinden sich die Veloabstellplätze (im Flusshaus) sowie ein gemeinschaftlicher Aussenraum der „Offene Räume“-Bewohner. Die Einblicke in die Atelierräume im Sous-Parterre suggerieren einen kreativen, urbanen Ort der von den Bewohnern vielfältig genutzt werden kann. Über ein zweites Volumen, welches als einfache Überdachung einer Treppe geplant ist, erfolgt der unterirdische Zugang zu den Erschliessungskernen der Wohnhäuser sowie der Zugang zum tiefer liegenden privaten Flussraum. Dieser ist als einfach gehaltene Grünfläche mit einigen grossen Bäumen gedacht und kann von allen Bewohnern als Erholungsraum genutzt werden. Das Untergeschoss des Flusshauses dient als Geräteraum für den Garten.
Damit der spezifische Charakter des bestehenden Fabrikgebäudes erhalten werden kann, bleibt die Primärstruktur unangetastet. Einzig für den Einbau des dritten Treppenhauses sowie für den Einbau der Haustechnik werden die bestehenden Deckenplatten (Sekundärstruktur) punktuell herausgebrochen. Damit können in den unteren beiden Geschossen authentische Loft-Wohnungen realisiert werden, die von der sichtbaren industriellen Betonstruktur und grosszügigen Raumhöhen profitieren. Die Unterteilung der Grundrisse orientiert sich am Achsmass der bestehenden Struktur, die in den beiden unteren Geschossen raumprägend zur Geltung kommt. Freistehende Einbauten, welche je nach Wohnungsgrösse variieren, enthalten alle erforderlichen Installationen (Sanitärzellen, Küche, Nebenräume, allenfalls Lüftung) und gliedern den Raum in einen grosszügigen Wohnbereich nach Süden und einen privateren Bereich nach Norden. Raumtrennende Elemente können an diesen Einbau angeschlossen werden, wodurch sich zusätzliche Zimmer abtrennen lassen. Das Gebäude wird mit grosszügigen hohen Fenstern versehen, welche eine gute Belichtung der Innenräume ermöglichen und den industriellen Charakter des Skelettbaus nach aussen tragen. Die geschlossenen Bereiche werden mit Backstein ausgefacht, aussen isoliert und verputzt. Alle Wohnungen verfügen über eine südorientierte Loggia, im Erdgeschoss sind zusätzliche Terrassen vorgesehen, welche einen attraktiven Bezug zum Fabrikkanal ermöglichen.
Die zweigeschossige Aufstockung ist als mit Aluminiumpanelen verkleideter Elementbau in Holz konzipiert. Eine Abfangdecke aus Hohlkastenelementen über dem bestehenden Dach erlaubt eine weitgehende Befreiung der Wohnungsgrundrisse von der darunterliegenden Struktur. Diese Hohlkastenelemente mit integrierten BSH-Trägern sind punktuell auf die vertikale Tragstruktur des Spinnereigebäudes abgesetzt und erlauben eine gleichmässige Verteilung der Vertikallasten auf die Stahlbetonstruktur. Die Wohnungen verfügen alle über grosszügige Loggia und ein zusätzliches südorientiertes Zimmer.
Die Erschliessung erfolgt über 3 Treppenhäuser, die als Zweispänner funktionieren. Die beiden bestehenden Treppenhäuser werden je um zwei Geschosse erweitert, mittig wird ein drittes Treppenhaus eingebaut und dadurch eine segmentgerechte Erschliessung ermöglicht. Die Ausführung dieser seitlichen Kerne erfolgt in Stahlbeton (Aussteifung), das mittlere in Stahlbeton oder Mauerwerk.
Der Projektentwurf für das neue Hauptquartier der Commercial Bank of Ethiopia in Addis Abeba befindet sich an sehr zentraler Lage in unmittelbarer Nähe zum bestehenden Geschäftsviertel. Mit 34 Geschossen resp. 135m Höhe ist das Bürohochhaus das höchste Gebäude der Stadt. Um diese Bedeutung zu bekräftigen wird ein grosszügiger öffentlicher Platz vorgeschlagen, der das Gebäude wirkungsvoll inszeniert und gleichzeitig die Verbindung zum benachbarten Kaufhaus mit Konferenzzentrum gewährleistet.
Das Hochhaus vereint lokale Bautradition mit einem zeitgemässen Erscheinungsbild und integriert Massnahmen zum Sonnenschutz in das Gestaltungskonzept der Fassade. Die Bürogeschosse sind flexibel schalt- und nutzbar und erlauben dadurch unterschiedliche Nutzungskonfigurationen, vom effizienten Grossraum- über das Gruppen- bis zum Einzelbüro. Zudem lassen sich mehrere Bürogeschosse über zentrale Atrien zusammenschliessen.
Das Projekt basiert auf einer auf die lokalen klimatischen Bedingungen abgestimmten innovativen Gebäudetechnik und schlägt eine Kombination von Photovoltaik und thermischer Sonnenenergie zur Deckung des Strombedarfs und der Kühllasten der Gebäude vor (solar air conditioning SAC). Damit kann das neue Hauptquartier weitgehend unabhängig vom öffentlichen Stromnetz betrieben werden.
Der Projektwettbewerb Wohnüberbauung Hüttengraben ist ein experimenteller Entwurf, bei dem die algorithmisch basierten Entwurfsmethoden der Forschungsgruppe Kaisersrot mit einer zeitgemässen Interpretation des gemeinnützigen Wohnens kombiniert wurden. So wurden einerseits die räumlichen Qualitäten der einzelnen Wohnungen maximiert und andererseits konnte aufgrund der so gewonnenen Qualitätsvorgaben eine städtebauliche Formation errechnet werden, die diese Vorgaben bestmöglich erfüllt und ihrerseits die konkrete Form der Wohnungen definiert.
Die Ansprüche an die Architektur sind hoch: gemeinnütziger Wohnungsbau muss viel leisten und erschwinglich bleiben, sowohl in der Erstellung wie auch im Unterhalt. Wir haben eine Struktur gewählt, die unsere Wohnungen effizient räumlich verzahnt. Sie besteht aus exakt gleichen Kuben in denen die kleineren Zimmer von jeweils drei Wohnungen sowie die gesamte Haustechnik untergebracht sind. Dazwischen spannen sich, geometrisch individuell geformt, die grossen Wohnräume auf. Aufwändige Erschliessungsbauten braucht es praktisch keine, zwei Drittel der Wohnungen, diejenigen mit 4.5 und 5.5 Zimmern, werden ebenerdig erschlossen. Darüber befinden sich, über eine durch einen Rücksprung des Volumens entstehende Passerelle erschlossen, die 3.5 Zimmer Wohnungen. Diese müssen zwar auf den direkten Zugang zur Landschaft verzichten, sind dafür aber alle mit einer 40m2 grossen Terrasse mit Weitblick ausgestattet. Die verspielte Dachform dieser Wohnungen schafft im Inneren grosszügige Räume und verleiht der Überbauung insgesamt ein markantes äusseres. Dank der effizienten Struktur, die sich bis in das Untergeschoss fortsetzt und der optimierten Bauweise, welche bis auf die Tragstruktur vollkommen auf vorfabrizierten bzw. sehr einfachen Elementen beruht, reduzieren sich die Baukosten auf das verlangte Mass. Damit auch die Betriebskosten tief bleiben erfüllt die Überbauung die Kriterien des Minergie-P Standards und wird von Erdsonden mit Wärmeenergie versorgt.
Das Projekt des ägyptischen Investors Samih Sawiris für ein neues Tourismusresort in Andermatt bietet die Chance, eine stagnierende alpine Region in der Zentralschweiz durch neue touristische Nutzungen nachhaltig aufzuwerten. Basierend auf einem übergeordneten Masterplan für das gesamte Resort wurden vier alpine Apartmenthäuser im gehobenen Segment entworfen, welche den Anforderungen der verschiedenen Zonen von „Neu-Andermatt“ Folge leisten. Alle Häuser zeichnen sich durch eine spezifische Interpretation zeitgenössischer alpiner Wohntypologien aus und kombinieren traditionelle Materialisierung mit moderner Gebäudetechnologie und flexiblen Grundrissen gehobenen Standards.
Die verhältnismässig hohe Dichte und die geringen Gebäudeabstände des Resorts erforderte eine Organisation der Wohnungen welche eine gute Belichtung bei gleichzeitiger Wahrung der Privatsphäre der Bewohner ermöglicht. Diesen Anforderungen wurden durch unterschiedliche Massnahmen in der Grundrissorganisation und der Positionierung der Öffnungen Rechung getragen. In der Regel beinhaltet jedes Gebäude zwischen 12 und 15 Wohnungen unterschiedlicher Grössen, welche alle über Balkone oder Loggien verfügen.
Alle Gebäude der Zentrumszone stehen auf einem Podium, welches Parkierung, Logistik und Gebäudetechnik für die gesamte Anlage beinhaltet. Diese zentrale Versorgung bringt Abhängigkeiten für die Gebäude mit sich, die in der Projektierung berücksichtigt und mit der Gesamtplanung abgeglichen werden mussten. Die Gebäudestruktur und die Erschliessung mussten präzise auf die funktionalen Bedingungen des Podiums abgestimmt werden.
Das Haus befindet sich in Brione/TI über dem Lago Maggiore am Fusse des Monte Cardada. Die Parzelle liegt auf stark abfallendem Terrain und ist von der Strasse nicht in nützlicher Distanz erreichbar. Diese Rahmenbedingungen bestimmen die Setzung und die Bauweise des Gebäudes stark. Erst die gewählte Holzbauweise in Präfabrikation ermöglichte eine Montage mit dem Helikopter.
Das Haus scheint das Terrain nur sanft zu berühren. Das einzige Wohngeschoss steht hangseitig auf einer Stützmauer und talwärts auf fünf Betonstützen, die das Niveau ausgleichen. In der Verlängerung der fünf Stützen bilden fünf Holzrahmen quer zur Topographie die im Inneren sichtbare Primärstruktur des Hauses. Die Fassade wird auf die Rahmen montiert und dient der Aussteifung, während die Innenwände keine tragende oder aussteifende Funktion haben. Anstatt dem Keller-Geschoss entsteht unter dem schwebenden Wohngeschoss ein gedeckter und flexibel nutzbarer Aussenraum.
Im Innern erlebt bestimmt der Rhythmus der Primärstruktur den Übergang zwischen dem offenen Wohnbereich zu den privaten Zimmern. Auf der Südseite wird offen gewohnt und gegessen. Die beeindruckende Aussicht wird mit grossen Fenstern gerahmt und der Aussenraum mit einer Terrasse zum Garten erschlossen. Die beiden Schlafräume und das Badezimmer richten sich zum See und zeichnen die Struktur des Gebäudes ebenfalls nach. Zudem sind sie untereinander und zum Wohnbereich durch Schiebetüren entlang der Fassade öffenbar. So entsteht eine flexible Schaltbarkeit der Räume, die es erlaubt entweder die privaten Bereiche abzutrennen oder aber das Gebäude in seiner ganzen Ausdehnung wahrzunehmen.
Das Museum of Modern Art liegt an einem der zentralsten Plätze von Warschau in direkter Nachbarschaft zum Kulturpalast aus sozialistischer Zeit und beinhaltet Ausstellungsflächen unterschiedlicher Dimension und Qualität, um allen medialen Formen zeitgenössischen Kunstschaffens gerecht werden zu können. Diese Flächen sind flexibel schaltbar, um unterschiedlich grosse Einheiten bilden zu können. Darüber hinaus sind vielfältige Nebennutzungen wie Bibliothek, Auditorien, Gastronomie und der Museumsshop im Volumen untergebracht. Eine flexible Stahlstruktur über einem konventionellen Sockel mit Einkaufzentrum ermöglicht es, die unterschiedlichen räumlichen Ansprüche der verschiedenen Nutzungen zu einem Ganzen zu vereinen.
Als Reaktion auf die strengen volumetrischen Vorgaben des Masterplans wurde ein grosser Hofraum eingeführt, der eine interessante Dichotomie zwischen innerer und äusserer Fassade herstellt. Die Erweiterung des öffentlichen Raumes in das innere der Struktur ermöglicht den städtebaulichen Übergang zwischen der pragmatischen äusseren Erscheinung des Gebäudes und seinem spezifischen Inneren.
Durch die Anordnung der kommerziellen Nutzungen auf dem Erdgeschoss- resp. Strassenniveau wird das Eingangsgeschoss des Museums auf einen Sockel angehoben, der von zwei Seiten her erschlossen wird. Auf diesem Lobbygeschoss sind alle öffentlich zugänglichen Nutzungen des Museums angeordnet. Die Obergeschosse beinhalten die Administration und die Galerieräume. Aussenräumlich werden die transparenten Sockelgeschosse des städtebaulich vorgegebenen Volumens durch eine vom Basler Künstler Jürg Stäuble gestaltete Fassade mit den introvertierten Obergeschossen zusammengebunden.
Das städtebauliche Konzept für Europuls schlägt eine nachhaltige Aufwertung des Altfeld-Areals in St. Margrethen vor. Der Masterplan sieht vor, den Ortskern vom Bahnhof her über das Areal mit dem nördlich gelegenen Grenzübergang durch eine öffentliche Freiraumachse zu verbinden. Eine zweite Quartierachse sichert die Durchlässigkeit für Fussgänger, Radfahrer und den Besucherverkehr. Ausgehend von diesen zwei aussenräumlichen Verbindungen wird das Areal in acht flexible Baufelder ähnlicher Grösse unterteilt, womit eine Flexibilität für unterschiedliche Nutzungen und für eine schrittweise Etappierung geschaffen. Die im Richtprojekt bestimmten und im Sondernutzungsplan fixierten «Spielregeln» gewährleisten die erforderliche Flexibilität und sichern gleichzeitig eine hohe räumliche und städtebauliche Qualität.
Die Gebäudetypen bestehen aus einem flexibel nutzbaren Sockelbau für gewerbliche oder kommerzielle Nutzungen mit unterschiedlichen Aufbauten für Wohnen und Dienstleistung. Diese Aufbauten sind bzgl. Nutzfläche, Tragstruktur und Orientierung sowohl für Wohnen als auch für Dienstleistungen optimiert worden. Für alle Gebäudetypen wurden Wohn- und Bürokonzepte geprüft, welche eine zielgruppen- und marktgerechte Flexibilität gewährleisten. Für die Wohngebäude wurden unterschiedliche Grundrisskombinationen entwickelt, welche einen flexiblen Wohnungmix gewährleisten und gleichzeitig einen architektonischen Ausdruck von hoher Qualität ermöglichen. Die Dachflächen der Sockelbauten sind als attraktive Dachterrassen ausgestaltet und stehen den allen Nutzern als Freiflächen zur Verfügung.
Der Spielraum für die Volumetrie des Gebäudes wird durch die knapp bemessene längliche Parzelle begrenzt. Die baurechtlichen Rahmenbedingungen bestimmen die Setzung des Volumens massgeblich. Grenzabstand, Traufhöhe und Nutzungsziffer führten zur vorliegenden volumetrischen Setzung. Innerhalb dieser engen Begrenzung wurde der Grundkörper weiterbearbeitet.
Die beeindruckende Aussicht wird durch grosse Fenster im Wohngeschoss gerahmt und inszeniert. Die beiden Hauptwohnräume werden gezielt ausgerichtet. Das Wohnzimmer orientiert sich über ein grosses Eckfenster nach Süden über den See nach Italien, die Küche mit Essbereich erlaubt einen Ausblick nach Nordosten, über das Dorf und das Maggia-Delta.
Die privaten Räume im unteren Geschoss orientieren sich frontal auf den See. Die Fenster sind kleiner und damit privater als in den darüber liegenden Wohnräumen. Das Haus ist in die Topographie eingebettet und sucht den Bezug zu den Stützmauern des Gartens. Wie ein geschliffener Stein fügt sich das Haus dadurch im steil abfallenden Gelände ein. Dieser Effekt wird durch eine leichte Auskragung des Gebäudekörpers über dem Sockelgeschoss akzentuiert.
Die Stadt Zürich hat sich in den vergangenen zehn Jahren stark in Richtung Westen entwickelt. Der Bahnhof Altstetten bildet auf der Entwicklungsachse Limmattal einen wichtigen Entwicklungsschwerpunkt, da er als sekundärer Verkehrsknoten gut an das regionale S-Bahn-Netz angebunden ist. Seine Bedeutung als Umsteigeknoten im öffentlichen Verkehr wird in Zukunft weiter zunehmen. Gebiete in unmittelbarer Nähe zum Bahnhof haben von der guten Verkehrsanbindung stark profitiert. Künftig soll das heute reine Gewerbe- und Dienstleistungsgebiet nördlich des Bahnhofs mit Wohnnutzungen durchmischt werden.
Die Frage nach der spezifischen Qualität urbanen Wohnens an einem durch Verkehrslärm stark belasteten Ort hat die Überzeugung für den Typus Hochhaus gefestigt: Fernsicht über die Stadt Zürich, ins Limmattal und auf den Üetliberg mit möglichst grosser Distanz zu den Lärmquellen der Bahnlinie und der Europabrücke. Die Schaffung eines öffentlichen Platzraums mit öffentlichen Nutzungen und Wendeschlaufe für die neue Tramlinie Zürich-West stellen für das Quartier eine wichtige städtebauliche Aufwertung dar. Die Konzentration der Baumasse in zwei markanten Baukörpern ermöglicht es, zusätzlich zum städtischen Verkehrsplatz einen ruhigeren öffentlichen Freiraum mit grosszügigem Baumbestand anzubieten, wie ihn das Quartier insbesondere im Hinblick auf künftige Aufenthaltsqualitäten dringend braucht. Zwei über Eck angeordnete Hochhäuser definieren somit zwei städtische Freiräume mit unterschiedlichen Qualitäten. Das Bebauungskonzept lässt sich in zwei Hauptetappen unterteilen, die unabhängig voneinander funktionieren. Beide Baukörper sind gleich aufgebaut: ein liegendes Volumen, das der Regelbauweise entspricht mit einem aufgesetzten Hochhausteil.
Die Struktur der Gebäude ermöglicht eine hohe Flexibilität. Das Nutzungskonzept kann in Zukunft an veränderte Marktbedingungen angepasst werden. Die unteren Geschosse sind jeweils für Büronutzung vorgesehen, im Hochhausteil lassen sich Büros, Hotel, Wohnungen sowie Schulungs- und Konferenzräume flexibel kombinieren.